4400 Nyíregyháza Hímes
Ingatlan sorszáma: 9693
700 000 Ft / m2
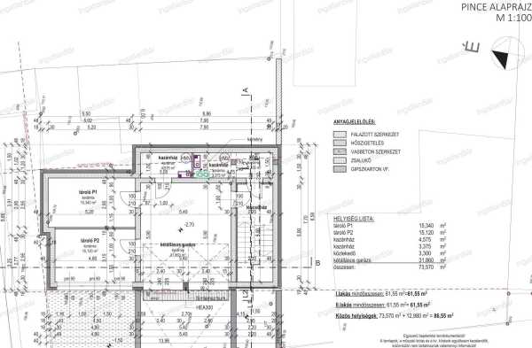
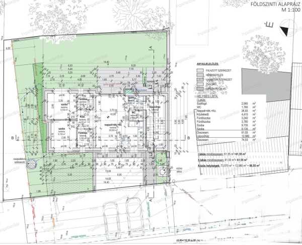
Új építésű lakás eladó Nyíregyházán – Hímes városrészben! ✅ Csendes környezet | ✅ Padlófűtés | ✅ Garázs | ✅ 2026-os átadás Nyíregyháza egyik legkeresettebb, kertvárosias részén, Hímes városrészben kínálunk eladásra egy új építésű kétlakásos társasház emeleti lakását. A lakások egymás felett helyezkednek el, külön bejárattal, így ideális választás akár családok, akár két generáció számára. Lakás alapterülete: 61,55 m² Pinceszinten: kétállásos garázs, tárolók, kazánházak, közlekedő – összesen 86,55 m² Fűtés: korszerű padlófűtés Építés éve: 2025 Átadás: 2026 nyár–ősz Irányár: 73,5 millió Ft Főbb jellemzők: Modern épület korszerű technológiákkal Minőségi anyaghasználat Saját tárolóhelyiségek Tágas, világos belső terek „A hirdetésben látható belső terek látványtervei belsőépítész által készített tervek alapján készültek Garázs közvetlenül az épület alatt Az ingatlan ideális választás lehet otthonteremtéshez vagy befektetésnek, hiszen a Hímes városrész nyugodt, rendezett környezete biztosítja a hosszú távú értékállóságot. Érdeklődni: Balla Anett Ingatlan&Bankbár
Lépjen velünk kapcsolatba!
Balla Anett
IngatlanBár
A partner további hirdetései
Kapcsolatfelvételhez kattintson
A tétel adatlapján feltüntetett leírások a rendelkezésre álló információink alapján készültek. Az eszközök működőképességét, rejtett hibáit nem vizsgáltuk, azokról nincs tudomásunk. Kérjük, hogy licitálás előtt személyesen is tekintsék meg a megvásárolni kívánt tételeket, mert utólag nem tudunk reklamációt elfogadni. A szállítási és bontási költségek a vásárlót terhelik. A szállítást akkor lehet megkezdeni, ha az eladó az erre vonatkozó engedélyt megadta. A leütési ár nem tartalmazza az ÁFÁ-t és a vásárlói felárat.