4400 Nyíregyháza Hímes Fecske utca
Ingatlan sorszáma: 9691
700 000 Ft / m2
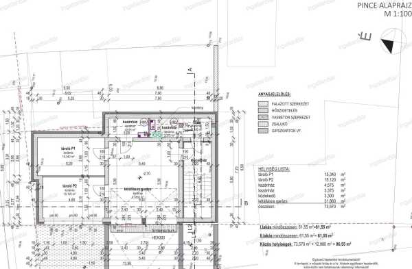
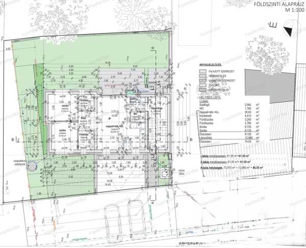
Új építésű lakás eladó Nyíregyházán – Hímes városrészben! Nyíregyháza egyik legkeresettebb, kertvárosias részén, Hímes városrészben kínálunk eladásra egy új építésű kétlakásos társasház földszinti lakását. A lakások egymás felett helyezkednek el, külön bejárattal, így ideális választás akár családok, akár két generáció számára. Lakás alapterülete: 105 m² Pinceszinten: kétállásos garázs, tárolók, kazánházak, közlekedő Fűtés: korszerű padlófűtés Építés éve: 2025 Átadás: 2026 nyár–ősz Irányár: 73,5 millió Ft Főbb jellemzők: Modern épület korszerű technológiákkal Minőségi anyaghasználat Saját tárolóhelyiségek Tágas, világos belső terek A hirdetésben látható belső terek látványtervei belsőépítész által készített tervek alapján készültek. Garázs közvetlenül az épület alatt Az ingatlan ideális választás lehet otthonteremtéshez vagy befektetésnek, hiszen a Hímes városrész nyugodt, rendezett környezete biztosítja a hosszú távú értékállóságot. Érdeklődni: Balla Anett Ingatlan&Bankbár
Lépjen velünk kapcsolatba!
Balla Anett
IngatlanBár
A partner további hirdetései
Kapcsolatfelvételhez kattintson
A tétel adatlapján feltüntetett leírások a rendelkezésre álló információink alapján készültek. Az eszközök működőképességét, rejtett hibáit nem vizsgáltuk, azokról nincs tudomásunk. Kérjük, hogy licitálás előtt személyesen is tekintsék meg a megvásárolni kívánt tételeket, mert utólag nem tudunk reklamációt elfogadni. A szállítási és bontási költségek a vásárlót terhelik. A szállítást akkor lehet megkezdeni, ha az eladó az erre vonatkozó engedélyt megadta. A leütési ár nem tartalmazza az ÁFÁ-t és a vásárlói felárat.