4400 Nyíregyháza Belváros
Ingatlan sorszáma: 9682
228 216 Ft / m2
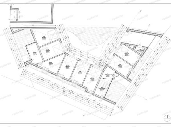
Belvárosi fejlesztési projekt – 6 lakásos társasház, 7 garázzsal, 1 db üzlethelyiséggel ELADÓ! A tervek készen állnak, és azonnal kezdhető a kivitelezés. 405 m²-es belvárosi telken, többlakásos társasház teljes építési dokumentációval ELADÓ Kivételes lehetőséget kínálunk befektetők, építtetők részére: belvárosi elhelyezkedésű, 405 m²-es telek eladó, amelyre már elkészült egy 6 lakásos társasház terve, üzlethelyiséggel és garázsokkal. A projekt főbb jellemzői: 6 lakás (tervezetten 45–70 m² között), 1 db üzlethelyiség raktárhelyiséggel , Garázsok (a telek beépíthetősége és tervek szerint), Mindösszesen: 744 m2 Tervezett beépítés. Szintek: Földszint+ 2 emelet Az érintett közműszolgáltatókkal (áram, víz, gáz) az egyeztetés megtörtént. Modern, városképbe illeszkedő építészeti terv, A projekt teljes dokumentációval eladó! Csendes, mégis központi lokáció: minden elérhető távolságban. Ez az ingatlanfejlesztési lehetőség ideális: tapasztalt kivitelezőknek, magán- vagy intézményi befektetőknek, olyan cégeknek, akik saját beruházásként lakásokat vagy üzleteket szeretnének értékesíteni vagy bérbe adni. Irányár:55.000.000 Ft További információ, tervrajzok, bejárás egyeztetés alapján. Keressen bizalommal: Balla Anett Ingatlan&Bankbár Nyíregyháza
Lépjen velünk kapcsolatba!
Balla Anett
IngatlanBár
A partner további hirdetései
Kapcsolatfelvételhez kattintson
A tétel adatlapján feltüntetett leírások a rendelkezésre álló információink alapján készültek. Az eszközök működőképességét, rejtett hibáit nem vizsgáltuk, azokról nincs tudomásunk. Kérjük, hogy licitálás előtt személyesen is tekintsék meg a megvásárolni kívánt tételeket, mert utólag nem tudunk reklamációt elfogadni. A szállítási és bontási költségek a vásárlót terhelik. A szállítást akkor lehet megkezdeni, ha az eladó az erre vonatkozó engedélyt megadta. A leütési ár nem tartalmazza az ÁFÁ-t és a vásárlói felárat.