4400 Nyíregyháza Hímes
Ingatlan sorszáma: 7807
328 102 Ft / m2
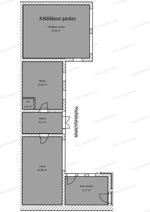
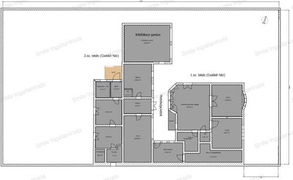
Egyet fizet kettőt kap ! Közhelynek tűnik, de igaz mert olyan ingatlant ajánlok eladásra , amely két önálló lakást (családi házat) foglal magába ár/érték arányban kedvező áron. Elhelyezkedés Nyíregyháza-Hímes csendes utcájában, a város központjától 2 km-re helyezkedik el az ingatlan, a belváros gyalogosan 25 perc alatt elérhető, a legközelebbi buszmegálló 350 m-re található. A KNY-i tájolású telken 2 családi ház épült melyek a melléképületekkel együtt egy 274,37 m2 nettó alapterületen elhelyezkedő ingatlant képeznek. A telek K-i oldalán először az Nappali+2 szobás 108 m2-es, összkomfortos polgári stílusú családi ház (1.sz.Családi ház) került megépítésre , ehhez kapcsolódott cca. 113 m2-en a több helyiségből álló Melléképület és a garázs (Melléképületek). A későbbiekben a meglévő épületek bővültek egy önálló 2 szobás komfortos lakrésszel (2.sz.Családi ház 52,99 m2). Ingatlanok jellemzői 1.sz.Családi ház Az ház az 1950-es években épült vegyes (tégla,vályog) falazatból, de az elmúlt közel 70 évben többször felújításra illetve korszerűsítésre került, a mai állapotában gyakorlatilag azonnal birtokba vehető. A falvastagság átlagosan 40-50 cm de néhol eléri a 70 cm szélességet is. A tetőszerkezet ép a tetőhéjazat Bramac cseréppel került lefedésre. A külső és a belső nyílászárók tölgyfából egyedileg készültek, az ablakok hőszigeteltek. A lakótér belmagassága átlagosan 3 m, ennek megfelelően az ajtók és az ablakok a klasszikus stílusban készültek. A lakás melegét gázkazán biztosítja a kerámia lapokkal burkolt felületeken padlófűtéssel míg a parkettázott hálószobákban radiátoros hőleadással. A nappali-étkező és a konyha egy légtérben került kialakításra , a hálószobák különállók de a fürdőszoba és WC is külön helyiségekben lett kialakítva, a ház részben alápincézett. (lásd. : 1.sz.lakás alaprajza, 1.sz.lakás területi eloszlása) Melléképületek Az 1.sz.Családi ház falára “U” alakban a 80-as években épült fel a kétállásos garázst (39,34 m2) is magába foglaló melléképület , mely a nyári konyha, tároló, téli kert és műhely részekre tagolódik. A műhely fűtését és hűtését inverteres klíma berendezés biztosítja, kialakításra került benne egy WC és kézmosó. A műhely aljzata modern laminált padlóburkolatot kapott. Szükség esetén az itt található helyiségekből további lakás is kialakítható. (lásd.: Melléképületek alaprajza, Melléképületek területi eloszlása) 2.sz.Családi ház A 2000-es években a melléképületek nyugati oldalára épült rá téglából a kétszobás komfortos lakrész. A lakás fűtését konvektorok biztosítják, az ablakok műanyag szerkezetűek hővédő üveggel ellátva. A szobákban laminált, a többi helyiségben kerámia burkolatok vannak. Az ingatlan helyiségei : előtér, fürdőszoba, 2 szoba, konyha , és a ház alagsorában egy kisebb méretű pince került kialakításra. Kert Az ingatlanhoz tartozó körbekerített telek 957 m2 , melyen az épületek és a parkosított kert találhatók. A növények öntözéséhez a vizet fúrt kút biztosítja. Egyéb A vételár tartalmazza a beépített gépeket, a bútorok megegyezés tárgyát képezik. A családi házakban vezetékes gáz külön mérőóráról megy . További részletekért kérem hívjon bizalommal !
Lépjen velünk kapcsolatba!
Reichert Róbert
Smile Ingatlaniroda
A partner további hirdetései
Kapcsolatfelvételhez kattintson
A tétel adatlapján feltüntetett leírások a rendelkezésre álló információink alapján készültek. Az eszközök működőképességét, rejtett hibáit nem vizsgáltuk, azokról nincs tudomásunk. Kérjük, hogy licitálás előtt személyesen is tekintsék meg a megvásárolni kívánt tételeket, mert utólag nem tudunk reklamációt elfogadni. A szállítási és bontási költségek a vásárlót terhelik. A szállítást akkor lehet megkezdeni, ha az eladó az erre vonatkozó engedélyt megadta. A leütési ár nem tartalmazza az ÁFÁ-t és a vásárlói felárat.