5561 Békésszentandrás
Ingatlan sorszáma: 6681
311 250 Ft / m2
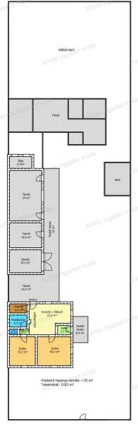
Békésszentandráson üdülősorhoz vezető úton, tetőtérbeépítéses családi ház eladó! Aszfaltozott út mellett, közel a központhoz, mégis kertvárosias környezetben helyezkedik el. Az ingatlan 1980-as év végén épült, kiemelt alapzatra B-30-as tégla falazattal. Alsó szintje hasznos alapterülete ~70m2, normál méretű. A főbejárathoz 9m2-es fedett teraszon keresztül lépünk be. Az előszobából balra 2 külön bejáratú utcára néző, parkettás szoba található, melynek ablakai nyugatra néznek. A folyosó végén mosdó, helyiség, és tusolós fürdőszoba került kialakításra. A konyha-étkező-folyosó egy légtérben, modern stílusban funkcionál, ezért tágas, világos, otthonos érzetet nyújt. A házközponti fűtést fatüzeléses vízteres kandalló biztosítja radiátoros hőleadókkal, mely az alsó szint közepén az étkezőben található.. Másodlagos fűtés biztosítása gázkonvektorokkal megoldott. Felső szint kialakítása elkezdődött, két szélén a sufni leválasztás, és a mennyezet szigetelése, parketta fedéssel elkészült. A fenti szoba 29m2 hasznos alapterülettel rendelkezik,a hozzá tartozó emeleti erkély 2,3m2.. Az ingatlanban beveztett nappali áram 3x16A, a vezérelt áram 3x25A. A gazdasági részt és a főépületet ~20m2 -es fedett rész köti össze, jeenleg fatárolóként hasznosítják. A melléképület első helyisége garázs, második tároló, harmadik műhelyként funkcionál. Minden helyiség árammal ellátott, betonozott. Bontásra váró ,,tákolmány válassza el térben a kertet. Itt konyhakerti növények, gyümölcsfák sokasága ontja termését. Locsolásukról fúrt kút gondoskodik. Az előkertes családi házhoz tartozó telek nagysága 1183nm. Az ingatlan per, teher, igény mentes! Az ingatlanról, a hirdetésekben szereplő információk a megbízótól kapott adatok alapján készítettük, irodánk azokért felelősséget nem vállal! Békésszentandrás 3500 fővel rendelkező, magyar lakta település. Szarvastól 5km-re található. Többszáz közvetlen vízparttal rendelkező hétvégi ház virágoztatja fel az idegenforgalmat. A Hármas-Körös Kákafoki- holtága mentén elhelyezkedő gyönyörű község. A 44-es főút szeli ketté.
Lépjen velünk kapcsolatba!
Turna Éva Katalin
Körös Ingatlan Iroda
A partner további hirdetései
Kapcsolatfelvételhez kattintson
A tétel adatlapján feltüntetett leírások a rendelkezésre álló információink alapján készültek. Az eszközök működőképességét, rejtett hibáit nem vizsgáltuk, azokról nincs tudomásunk. Kérjük, hogy licitálás előtt személyesen is tekintsék meg a megvásárolni kívánt tételeket, mert utólag nem tudunk reklamációt elfogadni. A szállítási és bontási költségek a vásárlót terhelik. A szállítást akkor lehet megkezdeni, ha az eladó az erre vonatkozó engedélyt megadta. A leütési ár nem tartalmazza az ÁFÁ-t és a vásárlói felárat.