4400 Nyíregyháza Damjanich-lakópark
Ingatlan sorszáma: 8994
998 571 Ft / m2
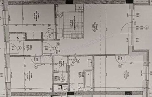
Eladó 2023-ban átadott, 2. emeleti lakás a Damjanich Lakóparkból jól átgondolt elrendezésű otthon központja a világos nappali-konyha, amelyből a 14,33 m²-es, nyugati tájolású teraszra lehet kilépni. Ez az egyik kedvenc rész: délután gyönyörűen besüt a nap, és esténként is igazán hangulatos. Miért szerethető ez a lakás? •3 külön nyíló szoba + egy tágas nappali – mindenki könnyen megtalálja a saját terét •Külön fürdő és WC •A lakás újszerű, modern, szép állapotban van •A környék csendes, tiszta és biztonságos •Alacsony fenntartási költségek, energiatakarékos megoldások •A ház alatt mélygarázs bérelhető, így a parkolás mindig kényelmes és biztonságos •A fűtést kondenzációs gázkazán biztositja. Ez az ingatlan tökéletes választás lehet annak, aki egy világos, jól kihasználható, modern otthonba költözne, ahol már az első belépésnél jó érzés tölti el az embert.
Lépjen velünk kapcsolatba!
Pap Andrea
Értékes Otthon Ingatlan
A partner további hirdetései
Kapcsolatfelvételhez kattintson
A tétel adatlapján feltüntetett leírások a rendelkezésre álló információink alapján készültek. Az eszközök működőképességét, rejtett hibáit nem vizsgáltuk, azokról nincs tudomásunk. Kérjük, hogy licitálás előtt személyesen is tekintsék meg a megvásárolni kívánt tételeket, mert utólag nem tudunk reklamációt elfogadni. A szállítási és bontási költségek a vásárlót terhelik. A szállítást akkor lehet megkezdeni, ha az eladó az erre vonatkozó engedélyt megadta. A leütési ár nem tartalmazza az ÁFÁ-t és a vásárlói felárat.