2800 Tatabánya Óváros
Ingatlan sorszáma: 8411
533 333 Ft / m2
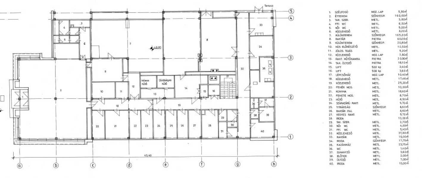
Az ELADÓ üzlethelyiség, vendéglátóegység Tatabánya Óvárosi részén, könnyen megközelíthető, biztonságos környéken található. Környezetében működő cégek, étterem, színház, park, sportcsarnok, illetve lakóépületek is megtalálhatóak. Kiváló adottságainak köszönhetően többfajta tevékenységre alkalmas. A közlekedési kapcsolatok kiválóak Tatabányán, az ingatlan az M1-es autópálya lehajtójától kb. 2 km-re található. Autóval, helyi-és helyközi buszjáratokkal is könnyen megközelíthető. Az épület 1980-ban épült, több szintes, lapos tetős, nettó hasznos alapterülete 2500 nm. A hozzá tartozó telek 7450 nm, mely rendezett és 100 db parkolóhely tartozik hozzá, amely biztosítja a kényelmes parkolási lehetőséget az ügyfelek és a személyzet számára. Az épület különböző funkciójú helyiségei, valamint a több bejárat lehetővé teszik az ingatlan hatékony és gördülékeny működését. Az alagsor összesen 600 négyzetméteres, mely korábban pékségként üzemelt. Jelenleg élelmiszerraktárként használják. Az itt található helyiségek kényelmesen megközelíthetőek a parkoló felől. A földszinten étterem működött, itt összesen 700 négyzetméteren, négy külön terem található. Ezek a légkondicionált különtermek rugalmasan átrendezhetőek, különböző események teljes körű lebonyolítására alkalmasak. További 200 négyzetméteren irodák, raktárak, öltözők és mosdók találhatóak. Az épület földszintjén egy másik, sokoldalú üzlethelyiség is található, amely többféle hasznosítási lehetőséget kínál, összesen 1000 négyzetméteren. Ezen kívül a teraszok összesen 280 négyzetméteren terülnek el. Az ingatlan alapozása lehetővé teszi további szintek építését, ami ideális lehetőséget kínál az üzleti növekedéshez és a különböző tevékenységek bővítéséhez. Jelenlegi tulajdonosa korábban kérvényezte az épület bővítését ráépítéssel, erre vonatkozóan korábbi tervek állnak rendelkezésre. Az üzleti terv 2 szint ráépítésével magas szintű szálloda üzemeltetése volt, melyet tovább fejleszthet az új tulajdonos. A kiváló adottságokkal rendelkező ingatlan tökéletes helyszíne lehet a korábbi funkciók megtartásával étteremnek, pékségnek, de alkalmas lehet egészségközpont, iroda, telephely, kereskedelmi vagy ipari tevékenység folytatására, illetve egyéb vállalkozás üzemeltetésére egyaránt. Az épület fűtését két korszerű, 2 éves gázkazán biztosítja, melyek az alagsort és a földszintet külön-külön látják el. A tetőre telepített 50 darab napelem korszerű és környezetbarát megoldást kínálnak az energiahatékonyság és a fenntarthatóság terén, csökkentve ezzel az üzemeltetési költségeket és az ökológiai lábnyomot. Az épület a helyi építési szabályzat szerint településközponti vegyes területen helyezkedik el, a terület beépítési módja szerint a megengedett legnagyobb építménymagasság 12,5 m, a maximális beépíthetősége 40%, a minimum kialakítható telekméret 800 nm. A településközponti vegyes területeken az ingatlanok több funkciót tölthetnek be, jelen esetben: kereskedelmi, szolgáltató, irodai, nevelési, oktatási, szociális, kulturális, sport, szálláshely. Ez az ingatlan egy valóságos kincs Tatabánya szívében, és egy komoly befektetési lehetőséget kínál azok számára, akik hosszú távra terveznek. A kiváló elhelyezkedés, a tágas tér és a modern felszereltség kombinációja kiváló lehetőséget biztosít az üzleti tevékenység bővítésére és a hosszú távú siker elérésére. Lépjen kapcsolatba velünk még ma, hogy részletesen tájékozódjon az ingatlan lehetőségeiről és a kiváló befektetési potenciálról! Adatbázisunkban számos eladó-kiadó ingatlan közül választhat. Személyre szabott ügyintézéssel, ügyvédi háttérrel állunk ügyfeleink rendelkezésére. Teljes körű díjmentes CSOK és hitelügyintézés nem csak a tőlünk vásárolt ingatlanokra. Minden egy helyen, az ingatlan bemutatásától a birtokba adásig! Hitelminősítés a Fő téri irodánkban a hét minden napján. Várjuk hívását!
Lépjen velünk kapcsolatba!
                                                
                        Lukácsi Illa
                         Sikeres Ingatlaniroda 
                        A partner további hirdetései
                        
Kapcsolatfelvételhez kattintson
                        
                        A tétel adatlapján feltüntetett leírások a rendelkezésre álló információink alapján készültek. Az eszközök működőképességét, rejtett hibáit nem vizsgáltuk, azokról nincs tudomásunk. Kérjük, hogy licitálás előtt személyesen is tekintsék meg a megvásárolni kívánt tételeket, mert utólag nem tudunk reklamációt elfogadni. A szállítási és bontási költségek a vásárlót terhelik. A szállítást akkor lehet megkezdeni, ha az eladó az erre vonatkozó engedélyt megadta. A leütési ár nem tartalmazza az ÁFÁ-t és a vásárlói felárat.