5000 Szolnok Belváros
Ingatlan sorszáma: 8683
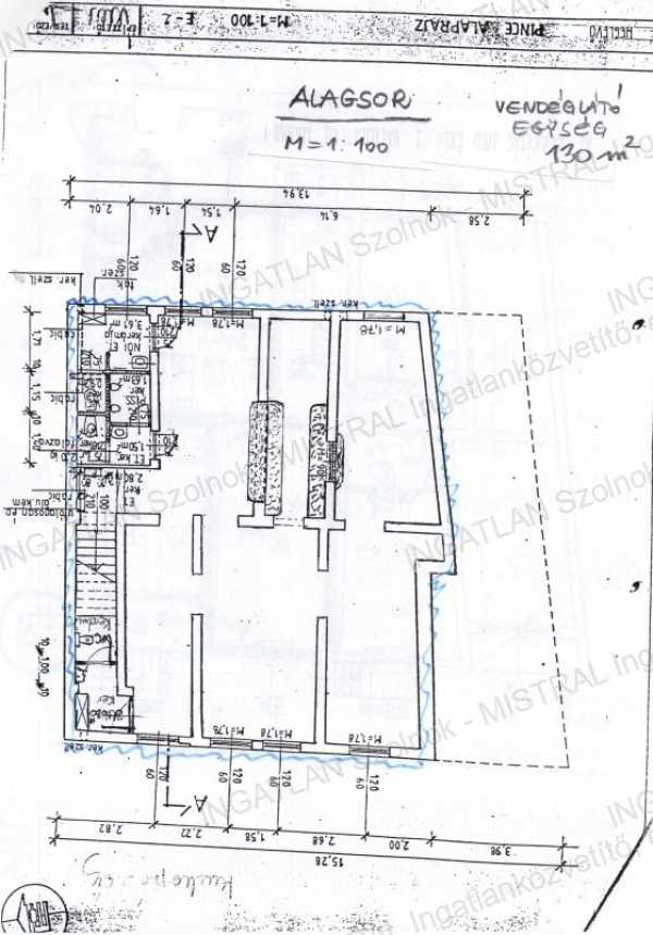
300 000 Ft / m2
Fedezze fel Szolnok belvárosának szívében található eladó üzlethelyiségünket, amely kiváló lehetőséget kínál vállalkozások számára. Az ingatlan alapterülete 130 négyzetméter, így bőven elegendő helyet biztosít a különféle üzleti tevékenységekhez. Az épület 1993-ban épült, és a külső állapota felújított, így a vásárló azonnal birtokba veheti. A fűtés cirkó rendszerrel megoldott, ami kényelmes és gazdaságos megoldást nyújt. Az üzlethelyiség félkomfortos, ideális választás lehet azok számára, akik egy jól megközelíthető, forgalmas utcára néző helyszínt keresnek. A parkolás az utcán ingyenesen megoldható, így vásárlói könnyedén hozzáférhetnek az üzlethez. Az ingatlan nem akadálymentesített, viszont a belvárosi elhelyezkedésből adódóan számos lehetőséget rejt magában, legyen szó akár kiskereskedelemről, szolgáltatásokról, vagy egyéb üzleti tevékenységekről. Ne hagyja ki ezt a kivételes ajánlatot, amelyért mindössze 39 000 000 Ft-ot kérünk! Érdeklődjön még ma, és valósítsa meg üzleti álmait Szolnok központjában!
Lépjen velünk kapcsolatba!
Kiss Ferencné
Mistral Ingatlan Kft Szolnok
A partner további hirdetései
Kapcsolatfelvételhez kattintson
A tétel adatlapján feltüntetett leírások a rendelkezésre álló információink alapján készültek. Az eszközök működőképességét, rejtett hibáit nem vizsgáltuk, azokról nincs tudomásunk. Kérjük, hogy licitálás előtt személyesen is tekintsék meg a megvásárolni kívánt tételeket, mert utólag nem tudunk reklamációt elfogadni. A szállítási és bontási költségek a vásárlót terhelik. A szállítást akkor lehet megkezdeni, ha az eladó az erre vonatkozó engedélyt megadta. A leütési ár nem tartalmazza az ÁFÁ-t és a vásárlói felárat.