8600 Siófok
Ingatlan sorszáma: 8328
569 799 Ft / m2
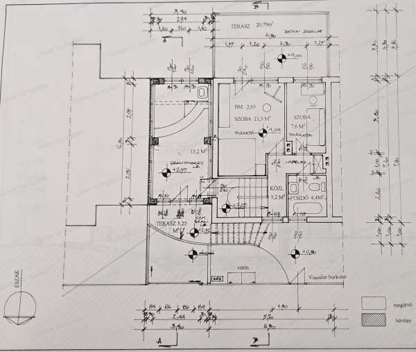
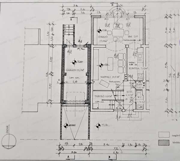
BELVÁROSI SORHÁZ SIÓFOKON – TELJES FELÚJÍTÁSRA VÁRÓ INGATLAN ÓRIÁSI POTENCIÁLLAL ELADÓ! Siófok központi részén, a város egyik legkeresettebb környékén eladó ez a felújítandó sorházi ingatlan, amely kivételes lehetőséget kínál mind befektetőknek, mind azoknak, akik saját elképzeléseik szerint alakítanák ki új otthonukat. A Fő tér, a Balaton-part, üzletek, éttermek és szolgáltatások néhány perc sétával elérhetők. Az ingatlan fő előnyei • Kiváló lokáció Siófok szívében • Ritka sorházi adottság saját, használható udvarral • Teljesen alakítható terek, akár modern, energiatakarékos otthon is kialakítható • Befektetők számára ideális, értéknövelő felújítással magas hozam érhető el • Közművek bekötve, azonnal megkezdhető a felújítás Alapadatok • Alapterület (Földszint + emelet) : 149 m² plusz 14.25 m² (tetőtér) Földszint: Nappali, étkező, konyha, közlekedő, tároló, kamra, tusoló + wc, terasz, kert, garázs Emelet: Szoba (teraszkapcsolattal), szoba (teraszkapcsolattal), szoba (terasz kapcsolattal, valamint külön bejárattal is megközelíthető), fürdő + wc, erkély Tetőtér: Szoba • Kert: 305 m² • Melléképületek: 30 m² • Elrendezés: több helyiség, teljes korszerűsítést igényel • Parkolás: garázsban (15.2 m²) vagy az ingatlan előtt is van rá lehetőség Kinek ajánlott? • Akik belvárosi, jól megközelíthető otthont keresnek • Befektetőknek, akik értéknövelő felújításban gondolkodnak • Vállalkozóknak, akik irodát, rendelőt vagy apartmant alakítanának ki • Családoknak, akik saját ízlésük szerint formálnák át a tereket Miért érdemes megnézni? Mert ilyen adottságú, belvárosi sorház ritkán kerül piacra, és a felújítás után egy magas értékű, modern ingatlan válhat belőle. A helyszín, a szerkezet és a lehetőségek együttese miatt ez egy biztos alapú, hosszú távon is értékálló választás. Bővebb információért, megtekintés egyeztetésért keressen bizalommal a megadott elérhetőségeimen. UPDATE VIP Ingatlan Iroda további szolgáltatásai: • Ügyvédi háttér, Közjegyző • Földhivatali ügyintézés • Díjmentes-bank semleges hitelügyintézés • Energetikai tanúsítvány készítés • Érintésvédelem felülvizsgálat/szakvélemény • Építész, lakberendező közreműködés
Lépjen velünk kapcsolatba!
Füzesi Csaba
Update Vip Ingatlan
A partner további hirdetései
Kapcsolatfelvételhez kattintson
A tétel adatlapján feltüntetett leírások a rendelkezésre álló információink alapján készültek. Az eszközök működőképességét, rejtett hibáit nem vizsgáltuk, azokról nincs tudomásunk. Kérjük, hogy licitálás előtt személyesen is tekintsék meg a megvásárolni kívánt tételeket, mert utólag nem tudunk reklamációt elfogadni. A szállítási és bontási költségek a vásárlót terhelik. A szállítást akkor lehet megkezdeni, ha az eladó az erre vonatkozó engedélyt megadta. A leütési ár nem tartalmazza az ÁFÁ-t és a vásárlói felárat.