8600 Siófok Balatonszéplak
Ingatlan sorszáma: 8117
1 962 727 Ft / m2
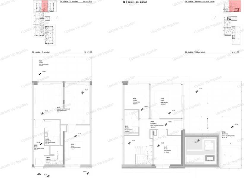
A siófoki UPDATE VIP INGATLANIRODA kínálatából: Eladó luxus apartman Siófok Ezüstpartján – közvetlen vízparti épületben! Új építésű,második emeleti, teraszos, tetőterasz 4+1 szoba + nappalis lakás, 2 fürdőszobával és panorámával a Balatonra. Az ingatlanhoz saját kocsibeálló is tartozik (ára: 5 millió Ft). 101 m2 a lakrész és18 m2 a terasz és 50m2 tetőterasszal ,panorámával! A lakás nyaraló minősítésű 27% Áfát tartalmaz! Cégeknek is kíváló befektetés! A Villapark minden apartmanját a modern technológia és a kényelem tökéletes ötvözete jellemzi: Hőszivattyús hűtő-fűtő rendszer távoli, mobil applikációról vezérelhető, energiatakarékos üzemeltetéssel. Okos otthon rendszer (FIBARO) világításvezérléssel, fogyasztásméréssel, riasztási funkcióval és nyitásérzékelőkkel. Az alap rendszer bővíthető árnyékolás- és biztonságtechnikával, így lakása teljesen az Ön igényeire szabható. Ez az ingatlan nemcsak nyaralónak tökéletes választás, hanem értékálló befektetés is Siófok legkedveltebb részén, az Ezüstpart közvetlen közelében. Az építőnek több referenciája is megtekinthető a helyszínen! Jelenleg a képen látható készültségben van a lakópark. Várható átadás 2026 nyár Bővebb információért, megtekintés egyeztetésért, kérem keressen a megadott elérhetőségeimen! UPDATE VIP INGATLAN IRODA további szolgáltatásai: Energetikai tanúsítvány készítés, Díjmentes-bank semleges hitelügyintézés, Ügyvédi háttér, Közjegyző, Földhivatali ügyintézés, Építész, Lakberendező.
Lépjen velünk kapcsolatba!
Várdai Andrea
Update Vip Ingatlan
A partner további hirdetései
Kapcsolatfelvételhez kattintson
A tétel adatlapján feltüntetett leírások a rendelkezésre álló információink alapján készültek. Az eszközök működőképességét, rejtett hibáit nem vizsgáltuk, azokról nincs tudomásunk. Kérjük, hogy licitálás előtt személyesen is tekintsék meg a megvásárolni kívánt tételeket, mert utólag nem tudunk reklamációt elfogadni. A szállítási és bontási költségek a vásárlót terhelik. A szállítást akkor lehet megkezdeni, ha az eladó az erre vonatkozó engedélyt megadta. A leütési ár nem tartalmazza az ÁFÁ-t és a vásárlói felárat.