8623 Balatonföldvár
Ingatlan sorszáma: 8094
1 787 805 Ft / m2
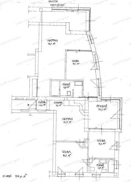
Eladó prémium lakás Balatonföldváron – Vízparti kényelem és luxus! Eladásra kínálunk egy modern, magas színvonalú társasházi lakást Balatonföldváron, közvetlenül a kikötő közelében, a híres platánsoron! A lakás tökéletes elhelyezkedésének köszönhetően félúton található a keleti és a nyugati strand között, így pár perc sétával elérhető mindkét partszakasz. Lakótér: 124.1m2 (Két lakás került összevonásra illetve a terasz beépítésre került, ami visszalakítható!) A társasház exkluzív szolgáltatásokat kínál: Elektronikus beléptető rendszer, központi gondnoki szolgáltatással Liftes épület, kamerarendszerrel felszerelt belső és külső terek Önálló riasztórendszer minden lakásban Fenntartható fűtés és hűtés hőszivattyúval és napkollektorokkal Távoli vezérlésű hőmérséklet-szabályozás interneten keresztül Automatizált alumínium redőnyrendszer, kézi vezérléssel A társasház lakói számára az épület földszintjén egész évben fűtött belső WELLNESS tér: medence, jakuzzi, szauna, gőzfürdő és merülő medence áll rendelkezésre, továbbá felszerelt fitness terem és külső grillterasz elektromos főzési lehetőséggel. A nyári időszakban a kültéri medence is üzemel. A lakáshoz saját, telken belüli parkolóhely tartozik, amely kizárólag a tulajdonos számára van fenntartva. A lakás eredetileg két különálló egységből állt, így energetikailag is jól osztható, minden kényelmi szempontot figyelembe véve. A lakás kiváló befektetési lehetőség, legyen szó nyaralásról vagy állandó otthonról! Ha szeretné Ön is élvezni a Balaton-part nyugalmát és az exkluzív kényelmet, ne hagyja ki ezt a lehetőséget! Bővebb információért, megtekintés egyeztetésért, kérem keressen a megadott elérhetőségeimen! UPDATE VIP INGATLAN IRODA további szolgáltatásai: Energetikai tanúsítvány készítés, Díjmentes-bank semleges hitelügyintézés, Ügyvédi háttér, Közjegyző, Földhivatali ügyintézés, Építész, Lakberendező.
Lépjen velünk kapcsolatba!
Füzesi Csaba
Update Vip Ingatlan
A partner további hirdetései
Kapcsolatfelvételhez kattintson
A tétel adatlapján feltüntetett leírások a rendelkezésre álló információink alapján készültek. Az eszközök működőképességét, rejtett hibáit nem vizsgáltuk, azokról nincs tudomásunk. Kérjük, hogy licitálás előtt személyesen is tekintsék meg a megvásárolni kívánt tételeket, mert utólag nem tudunk reklamációt elfogadni. A szállítási és bontási költségek a vásárlót terhelik. A szállítást akkor lehet megkezdeni, ha az eladó az erre vonatkozó engedélyt megadta. A leütési ár nem tartalmazza az ÁFÁ-t és a vásárlói felárat.