8248 Nemesvámos
Ingatlan sorszáma: 8046
1 428 571 Ft / m2
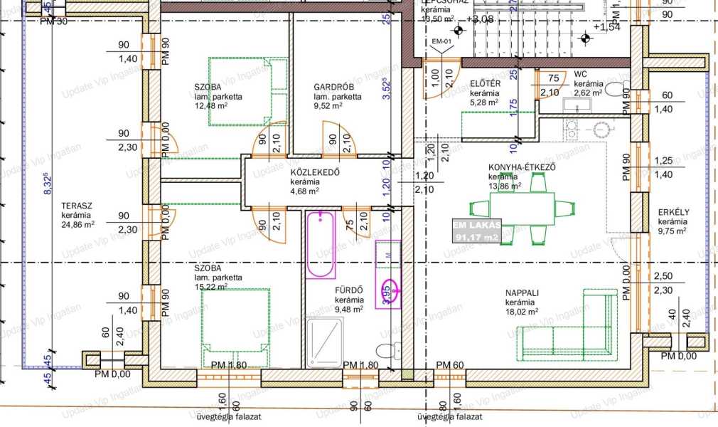
A balatoni Update Vip Ingatlaniroda kínálatából: VESZPRÉMTŐL 5 perces autóútra található ez a luxus kivitelezésű ingatlan, teljes bútorzattal! Eladó új építésű luxus lakások Nemesvámoson! Álmodj a tökéletes otthonról, amely a kényelem, a minőség és a modern technológia ötvözésével vár rád! Ez az új építésű lakás egy prémium lakóparkban helyezkedik el, mindössze 5 km-re Veszprémtől, a csendes, zöld övezetben, amely tökéletes választás azok számára, akik a nyugalmat és a természet közelségét keresik, de mégis könnyen elérhetik a város nyújtotta lehetőségeket. Az első emeleti lakás jellemzői: Térbeli kényelem és luxus: A 3 szobás lakás tágas terekkel, külön gardrób helyiséggel rendelkezik. Beépített bútorokkal, gépekkel! Energiahatékonyság: A padlófűtés Panasonic hőszivattyúval biztosítja az optimális hőmérsékletet a lakásban, míg a SPECTRUM típusú 3 rétegű nyílászárók a hőszigetelést és hangszigetelést is magas szinten garantálják. Kiváló minőségű anyagok: A BRAMAC tetőcserép és a 15 cm-es homlokzati szigetelés segíti a lakás fenntarthatóságát és alacsony energiafogyasztását. Prémium belső terek: Fehér színű lécvázas álmennyezet és egyéb stílusos részletek teszik még hangulatosabbá az otthont. A lakás tropikus növényekkel és pálmafákkal övezett udvarral rendelkezik, melyek a parkoló és a bevezető út mentén díszítik a környezetet. Minden lakáshoz saját pálmafák kerültek elhelyezésre az erkélyen, melyek az ingatlan vételárát tartalmazzák. Az udvarban egy komplett időzített locsolórendszer segíti a növények egészséges növekedését. Patakmeder eltolása révén egy nagyobb zöldterület jött létre, amely ideális pihenésre, vagy akár kerti rendezvényekhez is. Kiváló közlekedés és infrastruktúra: A lakás csupán 5 percre található Veszprémtől, autóval könnyen elérhető számos bevásárlási lehetőség. A környéken buszmegálló, óvoda, és Waldorf iskola is rendelkezésre állnak, így minden kényelmi szolgáltatás könnyen elérhető. A társasházban összesen 6 lakás található, mindegyik magas műszaki színvonalon, prémium kivitelezéssel. A bejáratnál elektromos kapu és kaputelefon biztosítja a biztonságos belépést. Minden lakáshoz 2 parkolóhelyet és egy tárolót biztosítanak. Ne hagyja ki ezt a páratlan lehetőséget, hogy egy prémium, környezetbarát otthon birtokosa legyen Nemesvámos egyik legszebb környezetében! Bővebb információért, megtekintés egyeztetésért, kérem keressen a megadott elérhetőségeimen! UPDATE VIP INGATLAN IRODA további szolgáltatásai: Energetikai tanúsítvány készítés, Díjmentes-bank semleges hitelügyintézés, Ügyvédi háttér, Közjegyző, Földhivatali ügyintézés, Építész, Lakberendező.
Lépjen velünk kapcsolatba!
Treszler Kata
Update Vip Ingatlan
A partner további hirdetései
Kapcsolatfelvételhez kattintson
A tétel adatlapján feltüntetett leírások a rendelkezésre álló információink alapján készültek. Az eszközök működőképességét, rejtett hibáit nem vizsgáltuk, azokról nincs tudomásunk. Kérjük, hogy licitálás előtt személyesen is tekintsék meg a megvásárolni kívánt tételeket, mert utólag nem tudunk reklamációt elfogadni. A szállítási és bontási költségek a vásárlót terhelik. A szállítást akkor lehet megkezdeni, ha az eladó az erre vonatkozó engedélyt megadta. A leütési ár nem tartalmazza az ÁFÁ-t és a vásárlói felárat.