9485 Nagycenk Széchenyi lakópark
Ingatlan sorszáma: 7762
1 164 179 Ft / m2
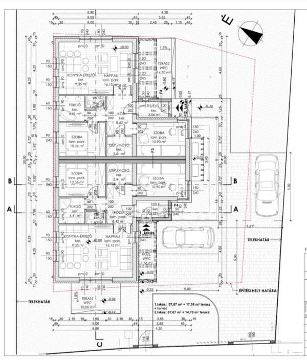
Lakás áron családi ház érzés! Eladó egy modern, egyszintes, téglaépítésű ikerházrész Nagycenken, a közkedvelt Széchenyi Village lakóparkban, mindössze 10 percre Soprontól és pár percre az osztrák határtól. Az ingatlan főbb jellemzői: 67,67 m² hasznos alapterület 2 hálószoba, amerikai konyhás nappali étkezővel fürdőszoba + külön WC háztartási helyiség, előszoba 14,7 m² fedett terasz, közvetlen kertkapcsolattal 300–374 m² saját kert, délnyugati tájolással térkövezett autóbeálló Műszaki megoldások: Wienerberger 30 NF ProfiDryfix falazat, 16 cm hőszigeteléssel betonfödém, beépíthető tetőtérrel – későbbi bővítési lehetőség korszerű levegő hőszivattyús padlófűtés 3 rétegű, 6 légkamrás hőszigetelt műanyag nyílászárók esztétikus, tartós betoncserép tető Környezet: A lakópark csendes, családbarát környezetben található, aszfaltozott úttal, közvilágítással. A település teljes infrastruktúrával rendelkezik: bölcsőde, óvoda, iskola, orvos, bank, bevásárlási lehetőségek. A természet közelsége miatt kiváló a kikapcsolódási lehetőség: kirándulás, lovaglás, biciklizés, horgászat, kisvasút. Árak és átadás: I. épület (utcafronti): kb. 300 m² telekrésszel – 78 M Ft II. épület (belső, nagyobb telekrésszel): kb. 370 m² telekrésszel – 79,9 M Ft A kulcsrakész átadás a szerződéskötéstől számítva 12 hónap, várhatóan 2026 őszéig. Pénzügyi lehetőségek: Otthon Start Fix 3% Hitelnek megfelelő!!CSOK Plusz, Babaváró hitel és kedvezményes konstrukciók igénybe vehetők. Független banki szakértő segít a legjobb megoldás megtalálásában. - Ez az otthon ideális választás mindazoknak, akik városi lakás helyett modern, kényelmes, kertkapcsolatos otthont keresnek – energiatakarékos megoldásokkal, nyugodt környezetben, de a városhoz közel. Ne maradjon le a lehetőségről – keressen bizalommal további információért és műszaki leírásért! 06709424509
Lépjen velünk kapcsolatba!
Mesztegnyei Attila
Mesztegnyei Attila
A partner további hirdetései
Kapcsolatfelvételhez kattintson
A tétel adatlapján feltüntetett leírások a rendelkezésre álló információink alapján készültek. Az eszközök működőképességét, rejtett hibáit nem vizsgáltuk, azokról nincs tudomásunk. Kérjük, hogy licitálás előtt személyesen is tekintsék meg a megvásárolni kívánt tételeket, mert utólag nem tudunk reklamációt elfogadni. A szállítási és bontási költségek a vásárlót terhelik. A szállítást akkor lehet megkezdeni, ha az eladó az erre vonatkozó engedélyt megadta. A leütési ár nem tartalmazza az ÁFÁ-t és a vásárlói felárat.