5600 Békéscsaba
Ingatlan sorszáma: 7724
357 820 Ft / m2
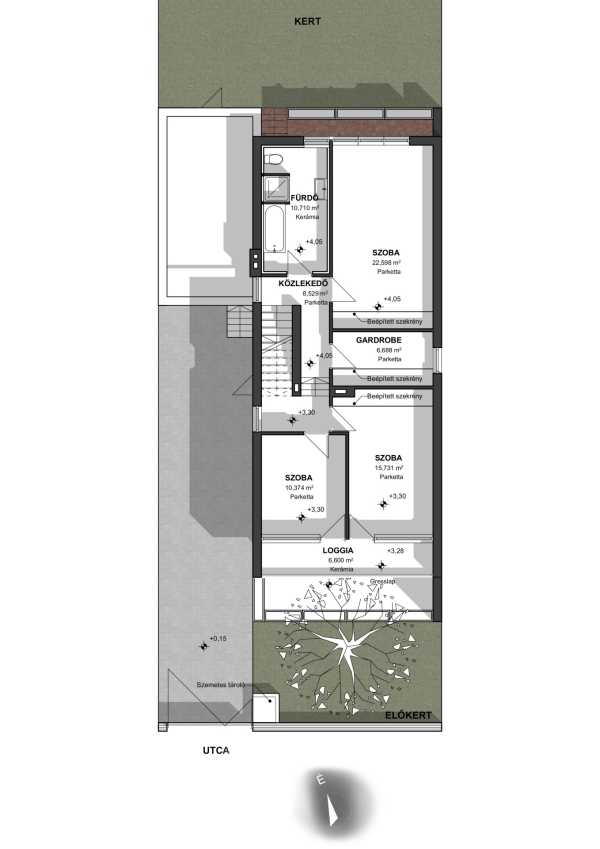
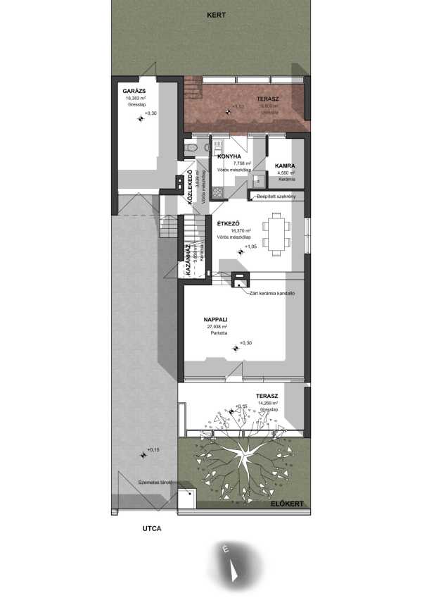
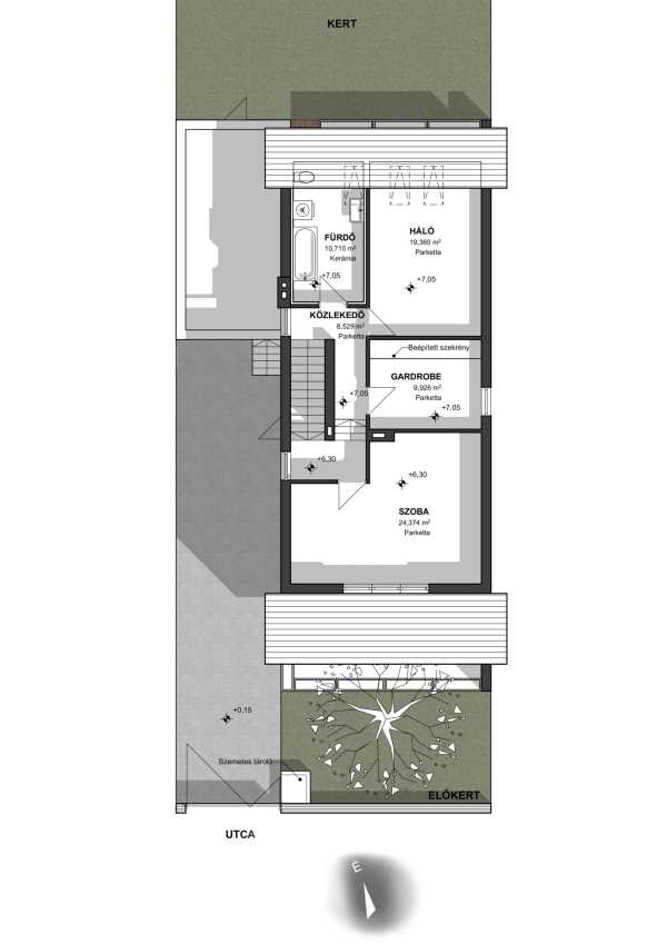
Békéscsabán a Rigó utca környékén kínálunk megvételre egy három szintes, előkertes családi házat. Az ingatlan szerkezetileg kifogástalan állapotban van. 1983-ban épült, B30-as téglából. A telek mérete 385 nm, a földszint 65 nm, az első szint 74 nm, a második szint pedig 72 nm. A földszinten található egy előszoba, nagy nappali, étkező, konyha, kamra, WC. A konyhából a 16,8 nm-es teraszra jutunk ki, onnan pedig a parkosított kertbe. Az első szinten 3 szoba, gardrób, fürdőszoba, közlekedő és egy loggia került kialakításra. A második szinten 2 szoba, gardrób, fürdőszoba illetve közlekedő van. További jellemzők: - fűtését gázkazán/vegyes kazán biztosítja radiátor hőleadókkal (a második szinten gázkonvektorok vannak) - a nappaliban egy gyönyörű fatüzelésű csempekályha is található - gerébtokos fa nyílászárók hőszigetelt üveggel, redőnnyel - 6 cm-es homlokzati hőszigetelés - a szobákban eredeti, kitűnő állapotú faparketta van, a többi helyiségben hideg burkolat - a meleg vizet átfolyós vízmelegítő biztosítja - a házban rengeteg beépített szekrény található - a lépcsők kőrisfából készültek - részben bútorozott - 16.8 nm-es garázs - a kertben van fúrott kút - több generáció együttélésére is alkalmas - infrastrukturális ellátottsága is nagyon jó, hiszen óvoda, iskola, benzinkút, élelmiszerboltok, gyógyszertár, orvosi rendelő stb is megtalálható 500 m-en belül. Az ingatlanra jellemző a minőségi anyagfelhasználás, jó elrendezés, több célú felhasználási lehetőség. Vevőinknek díjmentes hitelügyintézést biztosítunk. Részletekért hívjon bizalommal a 70/602 9679 számon.
Lépjen velünk kapcsolatba!
                                                 LÉVAI MÓNIKA
                        LÉVAI MÓNIKA
                         LÉVAI INGATLAN ÉS HITELIRODA
                        A partner további hirdetései
                        
Kapcsolatfelvételhez kattintson
 
                        A tétel adatlapján feltüntetett leírások a rendelkezésre álló információink alapján készültek. Az eszközök működőképességét, rejtett hibáit nem vizsgáltuk, azokról nincs tudomásunk. Kérjük, hogy licitálás előtt személyesen is tekintsék meg a megvásárolni kívánt tételeket, mert utólag nem tudunk reklamációt elfogadni. A szállítási és bontási költségek a vásárlót terhelik. A szállítást akkor lehet megkezdeni, ha az eladó az erre vonatkozó engedélyt megadta. A leütési ár nem tartalmazza az ÁFÁ-t és a vásárlói felárat.