9084 Győrság
Ingatlan sorszáma: 7689
705 435 Ft / m2
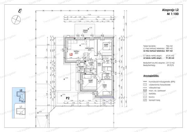
Nappali + 3 szobás ház eladó! Győrság új építésű részén 91,50 nm-es ikerház 437 nm-es telekrészen fűtéskész állapotban eladó. A két ház önállóan megközelíthető, nincs közös fal. A remek elosztású házban amerikai konyhás nappali, 3 szoba, fürdőszoba, külön WC, háztartási helyiség, közlekedő, előtér található. A nappaliból elérhető 13,95 nm-es terasz. A ház belső elrendezése készültségi fokhoz mérten még változtatható. A ház 30-as falazóelemből, 15 cm-es homlokzati szigeteléssel, 3 rétegű műanyag, hőszigetelt üvegezésű nyílászárókkal kerül kivitelezésre. Az ingatlan fűtését kondenzációs kazán biztosítja padlófűtéssel. Hűtéséről klíma gondoskodik. Felár ellenében hőszivattyús fűtés, kerti csap, riasztó-előkészítés, redőny-előkészítés, térkövezés stb. kérhető. Várható átadás: 2026 ősz-tél Az ingatlan fűtéskész ára: 64.900.000 Ft. Az ár tartalmazza a telek árát is. Kulcsrakész befejezés kérhető. Bővebb információkért forduljon hozzám bizalommal. Hétköznap és hétvégén is várom hívását! Díjmentes, bankfüggetlen hitelügyintézéssel állunk rendelkezésére.
Lépjen velünk kapcsolatba!
Neizer Éva
Trendi Ingatlan
A partner további hirdetései
Kapcsolatfelvételhez kattintson
A tétel adatlapján feltüntetett leírások a rendelkezésre álló információink alapján készültek. Az eszközök működőképességét, rejtett hibáit nem vizsgáltuk, azokról nincs tudomásunk. Kérjük, hogy licitálás előtt személyesen is tekintsék meg a megvásárolni kívánt tételeket, mert utólag nem tudunk reklamációt elfogadni. A szállítási és bontási költségek a vásárlót terhelik. A szállítást akkor lehet megkezdeni, ha az eladó az erre vonatkozó engedélyt megadta. A leütési ár nem tartalmazza az ÁFÁ-t és a vásárlói felárat.