2800 Tatabánya
Ingatlan sorszáma: 7494
326 613 Ft / m2
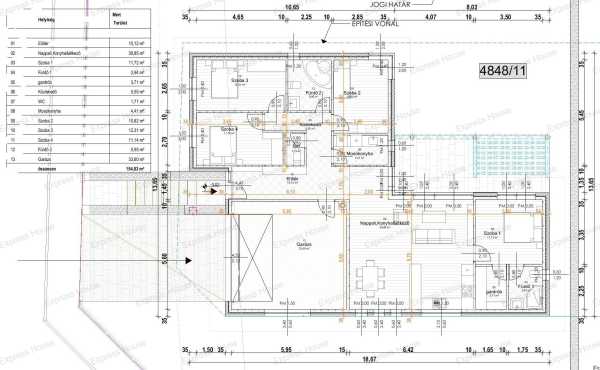
Vállaljuk családi házak építését. Alaptól – Prémiumig Br. 77-286 m2-ig , földszintestől-emeletesig, 33 db., nevekkel ellátott, típusházak közül, egyedi tervezést is, lehet választani! A megadott árban, a telkek nem szerepelnek és nem meglévő házak! Ajándékkártyák 3-6-9 M. Ft. Típusterves házakra Br. 100-130, 131-160, 161+ m2, fűtéskész állapotúakra! Az ajánlat 2025. június 1. és augusztus 15. között megkötött szerződésekre vonatkozik, fűtéskész állapottól induló vásárlás esetén. Oda építjük, meg ahova ön szeretné! Szerkezet késztől - külső készen - emelt fűtés készen - Kulcsrakész befejezés + lokáció és kapacitás függvényében! Ez az ingatlan,,Niki”! Bruttó 186 m2 beépített terület, Nettó 155 m2 hasznos alapterület. Nappali + 4 hálószoba, nagy üvegfelületek, klasszikus formavilág, többféle külső design lehetőség. Ahogy a legjobban megéri: a ház ára szerkezetkészen: 60.750.000 Ft + áfa Az alapár tartalmazza: változtatások nélküli terv adaptációt (az esetleges változtatások extra költségeket jelenthetnek) szigetelt lemezalapot, a külső és belső liapor falakat 275 cm-es panelmagassággal, elektromos kiállások előkészítései vízvezetékek helyének horonymarásai tetőszerkezetet, (szeglemezes rácsos tartós szerkezet) 25 fokig tető héjazatot (betoncserép borítással, Bramac Római Novo) e-napló vezetését A ház ára külső készen: 83.500.000 Ft + áfa A ház ára emelt fűtéskészen: 108.675.000 Ft + áfa Kulcsrakész befejezés + 12.048.000 Ft + Áfa Az alapár tartalmazza: változtatások nélküli terv adaptációt (az esetleges változtatások extra költségeket jelenthetnek) szigetelt lemezalapot, a külső és belső liapor falakat 275 cm-es panelmagassággal, elektromos kiállások előkészítései vízvezetékek helyének horonymarásai tetőszerkezetet, (szeglemezes rácsos tartós szerkezet) 25 fokig tető héjazatot (betoncserép borítással, Bramac Római Novo) tető cserepezést és bádogozást a külső 20 cm-es fehér EPS szigetelést (U=min. 0,17) színezést fehér színre 1,5 mm-es szemcsenagyságú dörzsölt vakolattal (Polifarbe) ereszcsatornát a tető héjazattal egyező színben nyílászárókat, (fehér színben, 3 rétegű üvegezéssel. Színes ablakok felár ellenében rendelhetők) 1 db bejárati ajtót katalógusból 1 db teraszajtó (bukó toló vagy emelő toló ajtó felár ellenében) e-napló vezetését villanyszerelés helyiségenként 5 kiállással, szerelvényezéssel vízvezeték alapszerelést beépíthető WC-k vázát, szerelvényeit (nyomógomb, WC csésze és ülőke nélkül) gipszkarton álmennyezet egy réteg kartonnal fújt cellulóz födém hőszigetelés 30 cm vastagságban aljzat betonozás 5 cm vastagságig szabadon választott fűtés 3.500.000 Ft nettó összegig (elektromos padlófűtés + napelem vagy levegő/víz hőszivattyús padlófűtés vagy levegő/levegő hőszivattyús fűtés vagy mennyezetfűtés Emeletes házaknál a betonfödém kivitelezését és a belső gipszbeton lépcsőket az ár tartalmazza! Az árak nem tartalmazzák: színes vakolatokat külső homlokzati kőburkolatokat, díszítéseket, 3d elemeket erkély vagy lépcsőkorlátokat teraszok és külső lépcsők kivitelezését pergolákat, autóbeállókat tervmódosítások díját világító testeket, lámpákat, bútorokat belső festést hideg és meleg burkolásokat, szegélyezéseket beltéri ajtókat szanitereket és csaptelepeket szerelvényezéseket és szerelvényeket belső ablakpárkányokat A Homes4you Magyarország egyik vezető készház építő vállalata, mely liapor házak építésével foglalkozik. Ezek árairól egyedi ajánlatot adunk, az igények felmérése után. Felhívjuk a figyelmet, hogy a teljes kulcsrakész befejezést nem minden esetben tudunk vállalni! Bővebb tájékoztatás https://www.homes4you.hu/martina/ “Mi valóban építünk is, nem csak hirdetünk! Hívjon most, és nézzük, megy együtt! Ingatlan közvetítés - Biztosítások - Hitelügyintézés - LIAPOR házépítés! Kérem, hívja a 0670/4534368-as számot! Hívjon, most és építsük meg álmai házát! A látványtervek a Homes4you kizárólagos tulajdona, azok engedély nélküli felhasználása tilos!
Lépjen velünk kapcsolatba!
Sági Károly
Express House
A partner további hirdetései
Kapcsolatfelvételhez kattintson
A tétel adatlapján feltüntetett leírások a rendelkezésre álló információink alapján készültek. Az eszközök működőképességét, rejtett hibáit nem vizsgáltuk, azokról nincs tudomásunk. Kérjük, hogy licitálás előtt személyesen is tekintsék meg a megvásárolni kívánt tételeket, mert utólag nem tudunk reklamációt elfogadni. A szállítási és bontási költségek a vásárlót terhelik. A szállítást akkor lehet megkezdeni, ha az eladó az erre vonatkozó engedélyt megadta. A leütési ár nem tartalmazza az ÁFÁ-t és a vásárlói felárat.