2100 Gödöllő
Ingatlan sorszáma: 7429
1 075 000 Ft / m2
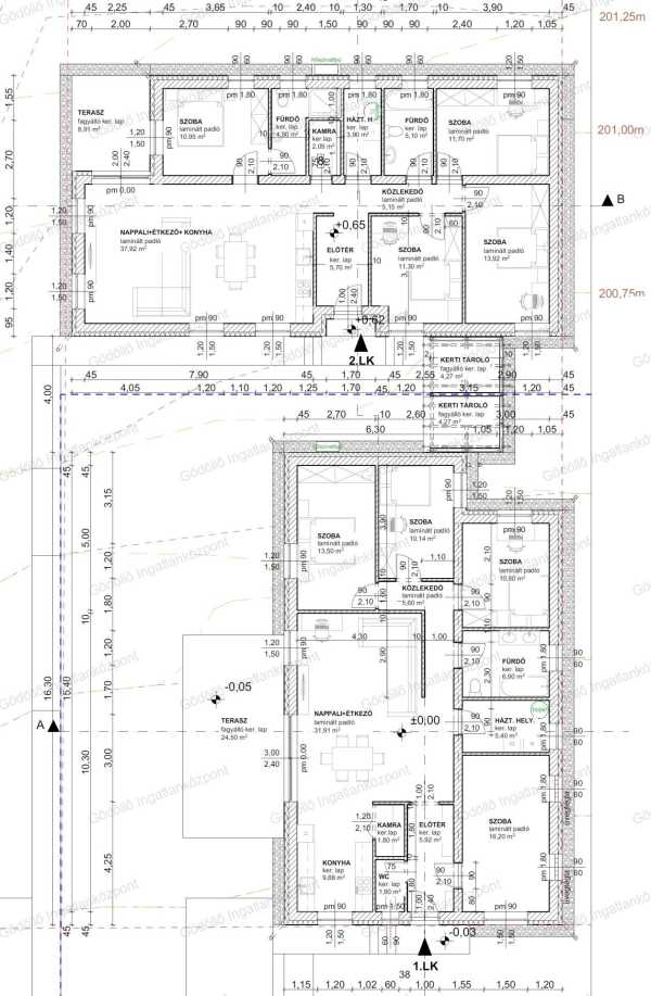
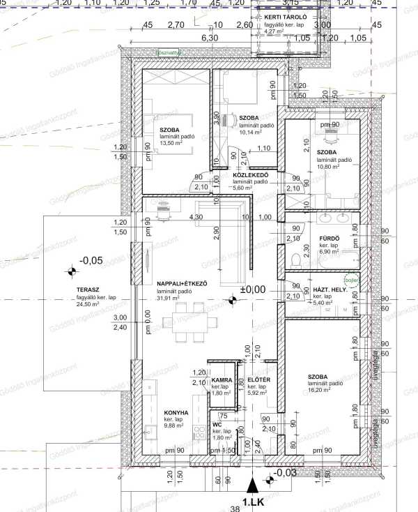
Gödöllő központhoz közeli kertvárosi részén, nappali + 4 szobás újépítésű ikerházfél referenciákkal rendelkező, megbízható építőtől eladó! Műszaki paraméterek: - 30-as Porotherm tégla falazat + 10cm grafit szigetelés, - beton cserépfedés, - födémen 20cm vastag kőzetgyapot, - 3 réteg üvegezésű, 5 légkamrás hőszigetelt nyílászárókkal, redőny előkészítéssel, - kondenzációs kazán vagy hőszivattyú (+3Mft), padlófűtéssel, - riasztó előkészítés, - hűtő-fűtő klíma 250.000.-Ft-ig, - bejárati ajtó: 250.000.-Ft, - beltéri ajtók: 70.000.-Ft/db, - kerámia burkolatok 5.500.-Ft/nm, - parketta 4.500.-Ft/nm, - mosdó 20.000.-Ft/db, - WC 30.000.-Ft/db, - csaptelepek 15.000.-Ft/db, - kád 50.000.-Ft, - zuhanyfolyóka 25.000.-Ft, - helyiségenként 1db kiállás + kiállások 25.000.-Ft/db, - helyiségenként 1db kapcsoló + kapcsolók 35.000.-Ft/db. Elosztás: - előtér, nappali-konyha-étkező, kamra, közlekedő, 4 szoba, fürdő, háztartási helyiség + 8,91nm terasz + 4,27nm kerti tároló Telek: - 500nm-es telken helyezkedik el, parkoláshoz kocsibeálló kerül kialakításra, - kaputól a bejárati ajtóig 1m széles, térkövezett járda, - Kerítés díszkővel, fa vagy acél közökkel. Környék: - Elhelyezkedése kiváló, iskola, óvoda, helyi és távolsági buszmegálló a közelben. Az ingatlant megbízható kivitelező építi! Burkolatok, belső ajtók a vevői igényei szerint még szabadon választhatók! Kérésre teljes műszaki tartalmat, alaprajzot szívesen küldünk! Irányár: 129.000.000.-Ft Hivatkozási szám: 2518262. Megtekinthető telefonos időpont egyeztetés alapján: Sápi Balázs +36 20 772-2429 sapibalazs@godolloi.hu GÖDÖLLŐ INGATLANKÖZPONT - www.godolloi.hu: Gödöllő és környéke legnagyobb ingatlan választéka /Gödöllő, Szada, Veresegyház, Kistarcsa, Kerepes, Erdőkertes, Fót, Dunakeszi/ eladó-kiadó családi ház, telek, lakás! Ingatlan építés és felújítás!
Lépjen velünk kapcsolatba!
Sápi Balázs
Gödöllő Ingatlanközpont
A partner további hirdetései
Kapcsolatfelvételhez kattintson
A tétel adatlapján feltüntetett leírások a rendelkezésre álló információink alapján készültek. Az eszközök működőképességét, rejtett hibáit nem vizsgáltuk, azokról nincs tudomásunk. Kérjük, hogy licitálás előtt személyesen is tekintsék meg a megvásárolni kívánt tételeket, mert utólag nem tudunk reklamációt elfogadni. A szállítási és bontási költségek a vásárlót terhelik. A szállítást akkor lehet megkezdeni, ha az eladó az erre vonatkozó engedélyt megadta. A leütési ár nem tartalmazza az ÁFÁ-t és a vásárlói felárat.