9177 Ásványráró
Ingatlan sorszáma: 7362
637 234 Ft / m2
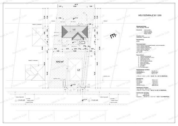
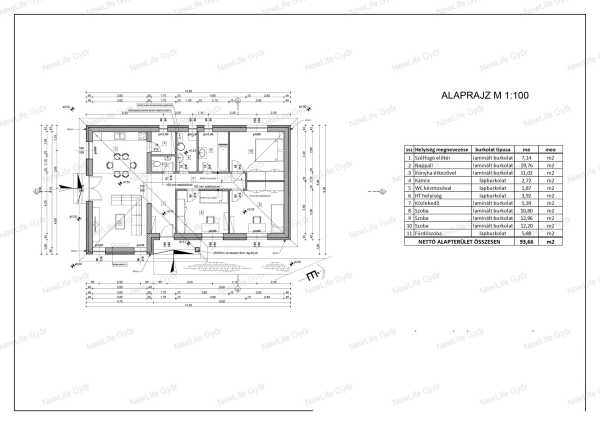
Győr-Moson-Sopron Vármegye, Ásványráró új építésű 4 szobás családiház eladó. A TELEPÜLÉSRŐL: Ásványráró a Szigetköz középső részén, a Duna jobb partján fekszik, Győrtől 20, Mosonmagyaróvártól 22 kilométerre. Természeti adottságai kiemelkedők, illetve több látnivalója is van, templomok, műemlékek, emellett pedig minden fontos intézmény: iskola, óvoda, orvosi rendelő, gyógyszertár és több vegyesbolt is megtalálható. AZ ÉPÜLET: A 4 szobás, 94 m2-es családi ház 630 m2-es telekhányadon (összesen 1312 m2 telken) másodmagával épül és fűtéskész állapotban kerül átadásra várhatóan: 2026 első felében. Természetesen, kulcsrakész befejezésre is van lehetőség. Két ház egymás mögött helyezkedik el, külön bejárattal, kb 25 m-es utcafronttal rendelkeznek, magánszférát megőrizve nincs átjárás a másik udvarán. A helyszínrajzon jól látható, hogy az L2 (hátsó) épület az L1 (első) épület mögötti úton tudja megközelíteni saját udvarát, így teljesen különálló családi házként funkcionálnak. Nincs közös fal, nincs közös garázs vagy tároló. A két ház egymástól kb. 20 méter távolságban épülnek. Jogilag ikerháznak minősül a két épület, azonban a gyakorlatban családi házként funcionálnak. Elosztása: Előtér, közlekedő, amerikai konyhás nappali étkezővel, kamra, három szoba, fürdőszoba, külön WC, háztartási helyiség. MŰSZAKI TARTALOM: Teherhordó falazat 30-as tégla falazattal készülnek, 15 cm-es hőszigetelő rendszerrel. Fafödém, 30-cm üveggyapot hőszigeteléssel. Terrán fekete tetőcserép, antracit bádogos szerkezet és esőcsatorna. Padló hőszigetelés 12 cm-es lépésálló. Homlokzati fehér műanyag nyílászárók hő- és hangszigetelt 5 légkamrás, 3 rtg üvegezéssel, műanyag 5 ponton záródó hőszigetelt fehér bejárati ajtó. A fűtésről és melegvízellátásról kondenzációs kombi gázkazán gondoskodik (Saunier Duval), hőleadás padlófűtésen keresztül történik. A fűtése valószínűleg változni fog hőszivattyúra, ezért további 2MFttal növekedhet az ár. Az ár a telekhányadot már tartalmazza. Kisebb mértékű változtatás az építés előrehaladottságától függően lehetséges, műszaki tartalom emelhető felár ellenében. (akár hőszivattyús fűtési rendszer, napelem is kérhető) A családi házra CSOK Plusz, kedvezményes lakáshitel, illetékmentesség is igényelhető/felvehető, így az összes támogatás kihasználható rá, ami jelenleg elérhető. KI ÉPÍTI? A vállalkozó és összeszokott csapata, számos referenciával rendelkeznek, lassan 20 éve építenek, befejeznek, felújítanak. Ez alatt az idő alatt kialakult egy rutin, a házak terveit folyamatosan alakítják, mindig a kor legfontosabb követelményeinek és trendjeinek figyelembe vételével. Tudják, amit vállalnak azt precízen, pontosan megvalósítják, határidők, igények betartásával. Ne maradjon le róla! A jelen hirdetésben rögzített, az ingatlannal kapcsolatos adatok, információk a Megbízó tájékoztatása alapján kerültek meghatározásra. Irodánkban az alábbiakkal tudjuk segíteni a gyors és megbízható ügyintézést: -bankfüggetlen hitelügyintézés, CSOK Plusz -energetikai tanúsítvány -értékbecslés -ügyvédi szerződések, jogi tanácsadás
Lépjen velünk kapcsolatba!
                                                 Kömőcziné Mezei Henrietta
                        Kömőcziné Mezei Henrietta
                         NewLife Győr
                        A partner további hirdetései
                        
Kapcsolatfelvételhez kattintson
 
                         
                        A tétel adatlapján feltüntetett leírások a rendelkezésre álló információink alapján készültek. Az eszközök működőképességét, rejtett hibáit nem vizsgáltuk, azokról nincs tudomásunk. Kérjük, hogy licitálás előtt személyesen is tekintsék meg a megvásárolni kívánt tételeket, mert utólag nem tudunk reklamációt elfogadni. A szállítási és bontási költségek a vásárlót terhelik. A szállítást akkor lehet megkezdeni, ha az eladó az erre vonatkozó engedélyt megadta. A leütési ár nem tartalmazza az ÁFÁ-t és a vásárlói felárat.