9019 Győr Gyirmót
Ingatlan sorszáma: 7287
459 632 Ft / m2
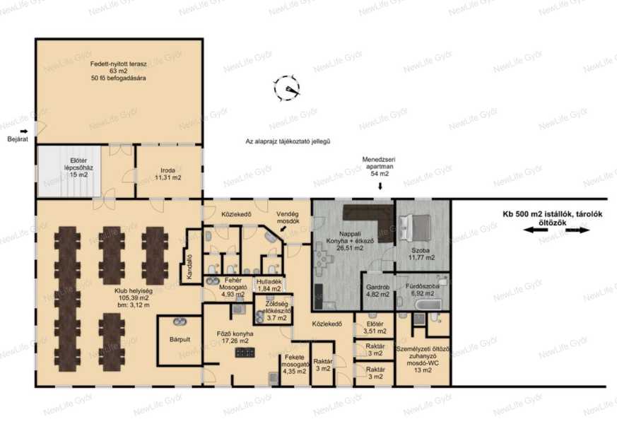
Győr-Moson-Sopron megye Gyirmót, eladó külterületi, ipari-kereskedelmi övezetben többcélú hasznosításra alkalmas telephely. Győrtől néhány percre Fertő-Lajta Hansági nemzeti parkban 10 hektáron kapott helyet a létesítmény. Távolságok: Győr: 5 km, Autópálya: 4 km, Bécs repülőtér 116 km, Budapest 120 km, Pozsony 70 km, Balaton 80 km Jelenleg sport, szabadidő – és kulturális központként, illetve lovardaként üzemel. Mai formáját közel 22 év alatt érte el. Kiépült és bejáratott, aktív vendégkörrel és méltán ismert és elismert hírnévre tett szert fennállása alatt. Minden részletében az európai szabványoknak megfelelően lett kialakítva. A központ otthonául szolgál 40 bér tartott lónak, több egyesületnek, magyar válogatott gerincét képező távlovas szakosztálynak is. Három tevékenység folyik jelenleg a létesítményben: 1., Lovarda: hobbi és profi lovasok, lótartók számára. Évente kerül megrendezésre több nagyszabású díjugrató, vadászlovaglás, távlovas – és western lovas versenynek. Illetve otthont ad Győr város legismertebb hagyományőrző íjász klubjának is biztosítva számukra a szabadtéri edzést és helyi versenyek szervezésének lehetőségét. Az alapítás óta a város egyik – ha nem a legismertebb – lovardájává nőtte ki magát. 2., Étterem: A lovas és egyéb győri illetve Győr környéki vendégekre alapozva működik egy 50 fős étterem melegkonyhával, 50 fős fedett, körbekerített, nyitott terasszal. A klubhelyiség lehetővé tesz ezáltal más, kapcsolódó rendezvényet is, mint például vállalati- családi napok eseményei, „stand up comedy” előadások, filmvetítések, zenés estek, családi vacsorák és rendezvények (születésnapok, házassági évfordulók, ballagási ebédek, vállalati karácsonyi vacsorák, esküvők) stb. bonyolítását is. 3., Panzió: 20 fő magas színvonalú elhelyezésére biztosít lehetőséget. Visszajáró vendégkörnek nagy részét osztrák, német, és magyar nemzetiségű vendégek teszik ki, akiknek nagy megelégedésükre, a belváros akár helyi járatos busszal is megközelíthető. A terület teljes közműves (vezetékes víz, villany, gáz). A pályák és a fedeles lovarda/csarnok automata öntözőrendszerrel ellátottak, mely működéséhez a vizet a 72 m mély fúrt kút szolgáltatja, bevizsgált, iható vízzel. Megtalálható a pályák közt egy kis tavacska, mely kb. 1,5 m mély, közel 500 m2-es. Vizét a talajvíz adja, azon túl, hogy csodás kis oázisként terül el a pályák között ipari létesítmények tűzi víztározójaként is funkcionál. A villanyszámla egy részét a napkollektorok és a napelem fedezi. Az egész területen riasztó és kamerarendszer ügyel a biztonságért. Parkolás: 40 autó parkolására van lehetőség az objektum előtt. A 10 hektáros területen az alábbiak kaptak helyet: -884 m2-es főépület az alábbiakkal: Kívülről: Magyarország legnagyobb falfestménye: 270 m2 Földszint: 63 m2-es fedett, körbekerített-nyitott terasz (50 fő befogadására alkalmas) 213 m2-es étterem (50 fő részére) Konyha, raktárak, szociális helyiségekkel 54 m2-es apartman menedzsmentnek (légkondicionált) 77 m2-es raktár I. 163 m2-es raktár II. 357 m2-es főistálló (11 istálló (3X3m) + 11 férőhely lovaknak, nyeregtárolóknak) Öltözők fürdővel és WC -vel a vendégek számára Emelet: 8 db kétágyas szoba fürdőszobával (légkondicionált) – 6 db kétágyas, kettő franciaágyas 1 családi, kétszobás – kétágyas és franciaágyas szoba – kádas fürdőszobával (légkondicionált) Társalgó, gépészeti helyiség A főépület 40 cm-es tégla falazattal épült az 1960-as években, melyet folyamatosan újítottak, bővítettek. A tető 2018-ban teljes felújításon esett át, nemcsak Lindab lemeztető került fel egy részére, hanem a fa szerkezet is részben új lett. Ekkor történt a panzió bővítése illetve a nagyteljesítményű napelemrendszer kialakítása is. Duplarétegű Sofa ablakokat, kétrétegű hő és hangszigetelt ajtót kapott a legutóbbi felújítás alatt. Fűtése gázkazánnal, radiátorokkal megoldott, tetőtérben és a menedzser apartmanban hűtő-fűtő klíma adja a meleget a téli hónapokban. A főépület mellett az alábbi épületek találhatók még a területen: - 2X180 m2-es fedett, oldalt nyitott takarmánytároló - 154 m2 fedett szénatároló -36 m2 fedett szín -2X135 m2 fedett mobilkarám -104 m2-es személyzeti lakrész (Nappali+3 szoba, konyha, fürdőszoba) (fűtése vegyes tüzelésű kazánnal, radiátoros hőleadással megoldott. ) -966 m2-es csarnok/fedeles lovarda, magasított nézőtérrel, tégla oldalfallal, acél vázszerkezettel, lemeztetővel (23X42, belmagasság: -25 m2-es rendezvénybüfé faház -2 versenypálya 60x45 m és 30x70 m -Új istálló I. 7 boksz 154 m2 Új istálló II. 14 boksz és egy nyerges 9 angol boksz fából, fedett terasszal és kifutóval -Elkülönített karámok villanypásztorral 8000 m2 A jelen hirdetésben rögzített, az ingatlannal kapcsolatos adatok, információk az Eladó/Megbízó tájékoztatása alapján kerültek meghatározásra. Befektetőknek is kiváló lehetőség! Irodánkban az alábbiakkal tudjuk segíteni a gyors és megbízható ügyintézést: -bankfüggetlen hitel és CSOK ügyintézés -lakástakarék beszámítás -energetikai tanúsítvány -értékbecslés -ügyvédi szerződések, jogi tanácsadás -építészeti tervezés, kivitelezés
Lépjen velünk kapcsolatba!
                                                 Kömőcziné Mezei Henrietta
                        Kömőcziné Mezei Henrietta
                         NewLife Győr
                        A partner további hirdetései
                        
Kapcsolatfelvételhez kattintson
 
                        A tétel adatlapján feltüntetett leírások a rendelkezésre álló információink alapján készültek. Az eszközök működőképességét, rejtett hibáit nem vizsgáltuk, azokról nincs tudomásunk. Kérjük, hogy licitálás előtt személyesen is tekintsék meg a megvásárolni kívánt tételeket, mert utólag nem tudunk reklamációt elfogadni. A szállítási és bontási költségek a vásárlót terhelik. A szállítást akkor lehet megkezdeni, ha az eladó az erre vonatkozó engedélyt megadta. A leütési ár nem tartalmazza az ÁFÁ-t és a vásárlói felárat.