9231 Máriakálnok
Ingatlan sorszáma: 6860
720 631 Ft / m2
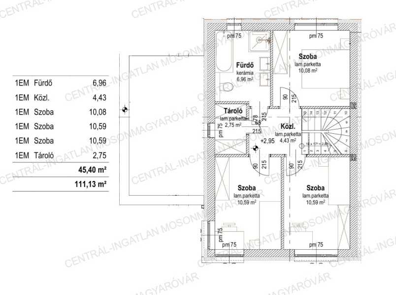
Egyedülálló TERMÁLVIZES fűtés és meleg víz ellátás. Az Aranyossziget-Villaparkban található házaknál termálvízzel táplált fűtés biztosított. Nincs szükség kazánra, gázkazánra, hőszivattyúra, stb. Új fejlesztésű, innovatív családi ház itt, a Centrál-Ingatlan kínálatában. -Mosonmagyaróvár közvetlen közelében, közigazgatásilag Máriakálnokhoz tartozó Aranyossziget-Villaparkban, zárt sorú beépítésű, új építésű családi házat kínálunk. Fontos megjegyezni az extrákat: termálvizes (olcsó) fűtés, rejtett redőnytok és lefutó sin beépítés, 2db klíma előkészítés, hőszivattyús meleg vízellátás, padlófűtés, házzal egybeépített garázs, csodálatos Mosoni-Duna melletti, védett környezet. - A 111.13m2 alapterületű ház lakóterülete 91.33m2 + garázs 19.8m2. A házhoz tartozó terasz 11.12m2, amely igény szerint bővíthető. -A földszinten tágas nappali-étkező-konyha, wc, előtér, háztartási helyiség (akár zuhanyzóval) és garázs található. Az emeleten 3db, jó méretű hálószoba, fürdő wc-vel, gardrób, közlekedő található. -A kis forgalmú, utcában épülő ház önálló 350m2-es telekre épül. A telek arányai ideálisak a zárt sorú beépítésre, elég kert marad a telekből. -A ház formája modern, letisztult stílusú tervezés eredménye. A belső elosztás is rendkívül ideális. A ház déli fekvésű, a legjobb hogy sok napsütés jusson a házba. -A nappaliból egy 11.12m2-es (bővíthető) teraszra tudunk kilépni, amely szintén déli fekvésű. Igény esetén pergolával vagy tetővel befedhető. -A műszaki tartalom magas. Kiváló anyagok felhasználásával, profi kivitelezésben készül minden. A házat tapasztalt, sok referenciával rendelkező, stabil vállalkozás készíti saját beruházásban. -Külső nyílászárók: modern, műanyag tokszerkezetű, 3 rétegű üvegezéssel készülnek. Az ablakok és a teraszajtó beépített redőnytokok és lefutó sínek lesznek beépítve (redőnypalást nélkül), villanykiállással a motoros mozgatáshoz. -A fűtés termálvizes rendszerről, hőcserélővel történik, az összes helyiségben padlófűtéssel. Hőszivattyús bojler biztosítja a meleg víz ellátást is. A termálvizes fűtés a házakban kiváló választás, mert rendkívül olcsó, üzembiztos fűtési mód. Nincs kazán karbantartás, kazáncsere, meghibásodás, nincs energiaár függőség. A termálvizet a területen lévő termálkút biztosítja. -A vételár tartalmazza a szintenkénti klíma előkészítést, igény esetén a klíma is felszerelésre kerül. -A ház 15 cm-es homlokzati szigeteléssel készül, továbbá a homlokzati vasbeton szerkezetekre + 5 cm szigetelés kerül. A felület nemes vakolat záróréteget kap. -A feltüntetett ár fűtéskész állapotra vonatkozik. Tartalmazza a telek árát, teljes külső befejezést, tereprendezést, belső fűtéskész állapotot (betonozott aljzat, vakolt falak, két szint között betonfödém, víz-, csatorna-, villanykiállások). -A kulcsrakész befejezésre is van lehetőség, választható anyagok felhasználásával, minőségi befejező munkákkal. -Az építész alaprajz szerinti méretek „nyers” méretek, vakolatlan falak közötti távolságot jelentik. Az Aranyossziget-Villapark közigazgatásilag Máriakálnokhoz tartozik, de Mosonmagyaróvár közvetlen határán fekszik, így inkább a város részének tekinthető. A villapark a Mosoni-Duna patkó alakú kanyarulatában, 150 hektáros erdő közepén került kialakításra, ahol megtalálható lesz egy szép látványtó és játszótér is. Garantáltan a családosok kedvence lesz. A nálunk vásárlóknak a lakások befejezéséhez, bútorozásához egyedi kedvezményeket biztosítunk kiemelt partnereinknél! Remek választás, kiváló energetikai besorolás, alacsony rezsi, kiváló lokáció, minőségi kivitelezés. Tervezett átadás lekötéstől függően 2026. III-IV. negyedév. Vásárolna és szükség lenne hitelre is? Kollégám díjmentes, bank független hitel-ügyintézéssel áll rendelkezésére. A megadott elérhetőségeken várom jelentkezését!
Lépjen velünk kapcsolatba!
Bubla Zoltán
CENTRÁL-INGATLAN MOSONMAGYARÓVÁR
A partner további hirdetései
Kapcsolatfelvételhez kattintson
A tétel adatlapján feltüntetett leírások a rendelkezésre álló információink alapján készültek. Az eszközök működőképességét, rejtett hibáit nem vizsgáltuk, azokról nincs tudomásunk. Kérjük, hogy licitálás előtt személyesen is tekintsék meg a megvásárolni kívánt tételeket, mert utólag nem tudunk reklamációt elfogadni. A szállítási és bontási költségek a vásárlót terhelik. A szállítást akkor lehet megkezdeni, ha az eladó az erre vonatkozó engedélyt megadta. A leütési ár nem tartalmazza az ÁFÁ-t és a vásárlói felárat.