1188 Budapest, XVIII. kerület
Ingatlan sorszáma: 6835
1 076 744 Ft / m2
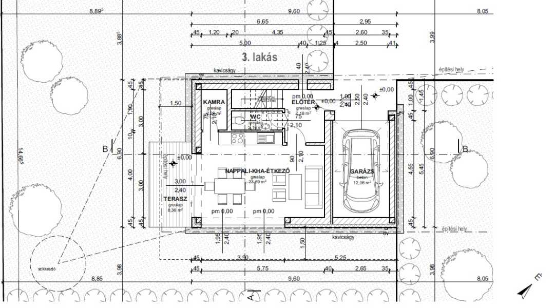
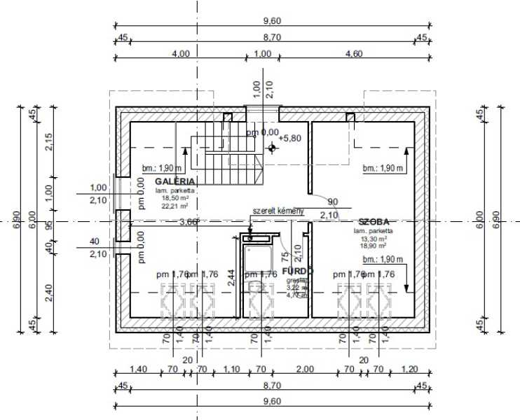
IKERHÁZ ELADÓ DINAMIKUSAN FEJLŐDŐ KOSSUTH FERENC TELEPEN XVIII. KERÜLETBEN! Ikerház ELŐFOGLALÁSA Budapest XVIII. kerületében, a KOSSUTH FERENC TELEP egyik LEGTRENDIBB részén IDEÁLIS VÁLASZTÁS mindenkinek, aki egy KORSZERŰ, MODERN és ENERGIATAKARÉKOS otthont keres! English version down below DUPLAKOMFORTOS, HŐSZIVATTYÚS családi házak a XVIII. kerület egyik LEGJOBBAN FEJLŐDŐ részén, Kossuth Ferenc telepen! Az INGATLAN átadása 2025 szeptemberében várható, így a leendő tulajdonosnak lehetősége van a választást az aktuális igényeihez igazítani. A kivitelezést egy MEGBÍZHATÓ, TŐKEERŐS KIVITELEZŐ végzi, akinek referenciái NAGYOBB PROJEKTEKBŐL is megtekinthetők, így a MINŐSÉG és a BIZTONSÁG garantált. Ez az INGATLAN tökéletes választás mind MAGÁNSZEMÉLYEK, mind BEFEKTETŐK számára. A korszerű kialakítás és a MODERN technológiák használata garantálja az ALACSONY FENNTARTÁSI KÖLTSÉGEKET, ezzel kiemelkedő ÉRTÉKÁLLÓSÁGOT biztosít. Iker ház jellemzői: Földszint Nappali/étkező: 23,40 m2 Konyha: 4,36 m2 Előtér: 4,84 m2 Külön WC: 1,98 m2 Terasz: 19,20 m2 Garázs: 12.74 m2 Emelet Közlekedő: 2,22 m2 Fürdőszoba+WC: 5,10 m2 Fürdőszoba+WC: 5,62 m2 Hálószoba: 16,38 m2 Szoba: 11,29 m2 Szoba: 9,30 m2 Gardrób: 6,71 m2 Erkély: 12,75 m2 Tetőtér Szoba: 11,13 m2 Galéria: 15 m2 Közlekedő: 5,60 m2 Fürdő: 3,44 m2 Műszaki leírás Beton sávalap -vasbeton lemezalap 30 cm porotherm teherhordó falak szálcsiszolt kivitelben, sarkokon 25/25 cm méterű vasbeton erősítő pillérekkel 20 cm monolit vasbeton lemezfödém 10 cm Ytong válaszfalak 3 rétegű hőszigetelt műanyag nyílászárók elektromos redőnnyel, szúnyoghálóval 15 cm ásványgyapot szigetelés a tetőben, 20 cm zárófödém, 10 cm EPS hőszigetelés a homlokzati falon. Monolit vasbeton lépcsők kerámia burkolattal Erkély, belső lépcsők üvegkorlát fémkerettel Tető fa ácsszerkezet, hőszigetelt szarufa közökkel, cserépfedés, alumínium színes eresz csatornarendszerrel Fűtés-hűtés hőszivattyús technológia, padlófűtés, split klímák Kaputelefon, tv antenna, telefonhálózat kiépítése, nyitás és mozgásérzékelők beépítése Választható burkolatok: melegburkolat 6.000 Ft/m2 hidegburkolat 10.000 Ft/m2 beltéri ajtók: 100.000 Ft/m2 A lakás FINANSZÍROZÁSA rendkívül KEDVEZŐ, hiszen igényelhető a CSOK PLUSZ, ÁLLAMI KAMATTÁMOGATÁSÚ LAKÁSHITEL, ILLETÉKMENTESSÉG, valamint BABAVÁRÓ hitel is. Az ingatlan KIVÁLÓ INFRASTRUKTURÁLIS környezetben helyezkedik el: a közelben minden FONTOS intézmény – ÉLELMISZERBOLT, ISKOLA, ÓVODA, ORVOSI RENDELŐ –, ami a mindennapi kényelmet biztosítja. A TÖMEGKÖZLEKEDÉS is könnyen elérhető, hiszen BUSZOK és VONAT segítik a közlekedést a város bármely pontjára, de a BELVÁROS, illetve az M0-ÁS AUTÓPÁLYA is egyszerűen, több főútvonalon megközelíthető. Átgondolt tervezés, MODERN műszaki megoldások és KIVÉTELES KÖRNYEZET várja az új tulajdonosokat. Befektetésnek és saját otthonnak egyaránt IDEÁLIS választás! Ne hagyja ki ezt a KIVÉTELES lehetőséget! Foglalja le új otthonát már ma! SEMI-DETACHED HOUSE FOR SALE IN THE DYNAMICALLY DEVELOPING KOSSUTH FERENC TELEP, DISTRICT XVIII! Pre-reservation for semi-detached houses in District XVIII of Budapest, in one of the MOST TRENDY areas of Kossuth Ferenc Telep – THE IDEAL CHOICE for anyone looking for a MODERN, CONTEMPORARY, and ENERGY-EFFICIENT home! These DOUBLE COMFORT, HEAT PUMP family homes are located in one of the FASTEST DEVELOPING areas of District XVIII, at Kossuth Ferenc Telep! The PROPERTY is expected to be handed over in September 2025, giving the future owner the opportunity to tailor their choices to current needs. Construction is carried out by a RELIABLE, WELL-CAPITALIZED DEVELOPER with REFERENCES from LARGER PROJECTS, ensuring GUARANTEED QUALITY and SECURITY. This PROPERTY is a perfect choice for both PRIVATE INDIVIDUALS and INVESTORS. The modern design and use of CONTEMPORARY TECHNOLOGIES guarantee LOW MAINTENANCE COSTS, ensuring OUTSTANDING VALUE RETENTION. Main Features of the Semi-Detached House: Ground Floor - Living/dining: 23.40 m² - Kitchen: 4.36 m² - Entrance hall: 4.84 m² - Separate WC: 1.98 m² - Terrace: 19.20 m² - Garage: 12.74 m² First Floor - Hallway: 2.22 m² - Bathroom + WC: 5.10 m² - Bathroom + WC: 5.62 m² - Bedroom: 16.38 m² - Room: 11.29 m² - Room: 9.30 m² - Walk-in closet: 6.71 m² - Balcony: 12.75 m² Attic - Room: 11.13 m² - Gallery: 15 m² - Hallway: 5.60 m² - Bathroom: 3.44 m² Technical Description - Concrete strip and reinforced concrete slab foundation - 30 cm load-bearing Porotherm brick walls in a brushed finish, with 25x25 cm reinforced concrete corner pillars - 20 cm monolithic reinforced concrete ceiling - 10 cm Ytong partition walls - Triple-glazed plastic doors and windows with electric shutters and mosquito nets - 15 cm mineral wool insulation in the roof, 20 cm in the top slab, 10 cm EPS thermal insulation on the façade walls - Monolithic reinforced concrete stairs with ceramic cladding - Balcony and internal stairs with glass railing and metal frame - Roof made with wooden truss structure, insulated rafters, tile covering, aluminum colored gutter system - Heating and cooling use heat pump technology, underfloor heating, and split AC units - Intercom, TV antenna, and telephone network preinstalled; opening and motion sensors installed Selectable Finishes: - Warm flooring: HUF 6,000/m² - Cold flooring: HUF 10,000/m² - Interior doors: HUF 100,000 each Financing for the property is extremely FAVORABLE**, as CSOK Plus, state subsidized mortgages, stamp duty exemption, and "Babaváró" (baby expecting) loans are available. The property is situated in an EXCELLENT INFRASTRUCTURAL environment: all IMPORTANT amenities – GROCERY STORE, SCHOOL, KINDERGARTEN, DOCTOR’S OFFICE – are nearby for everyday convenience. PUBLIC TRANSPORT is easily accessible, with buses and trains providing rapid access to any part of the city, while the DOWNTOWN and the M0 MOTORWAY can also be easily reached via multiple main routes. Thoughtful design, MODERN technical solutions, and an EXCEPTIONAL ENVIRONMENT await the new owners. It’s an IDEAL choice both as an investment and as a private home! DON’T MISS this EXCEPTIONAL OPPORTUNITY! Reserve your new home today!
Lépjen velünk kapcsolatba!
                                                
                        Kiss Márta
                         PORTABELLA Ingatlaniroda
                        A partner további hirdetései
                        
Kapcsolatfelvételhez kattintson
                        
                        
                        A tétel adatlapján feltüntetett leírások a rendelkezésre álló információink alapján készültek. Az eszközök működőképességét, rejtett hibáit nem vizsgáltuk, azokról nincs tudomásunk. Kérjük, hogy licitálás előtt személyesen is tekintsék meg a megvásárolni kívánt tételeket, mert utólag nem tudunk reklamációt elfogadni. A szállítási és bontási költségek a vásárlót terhelik. A szállítást akkor lehet megkezdeni, ha az eladó az erre vonatkozó engedélyt megadta. A leütési ár nem tartalmazza az ÁFÁ-t és a vásárlói felárat.