9084 Győrság
Ingatlan sorszáma: 8609
658 242 Ft / m2
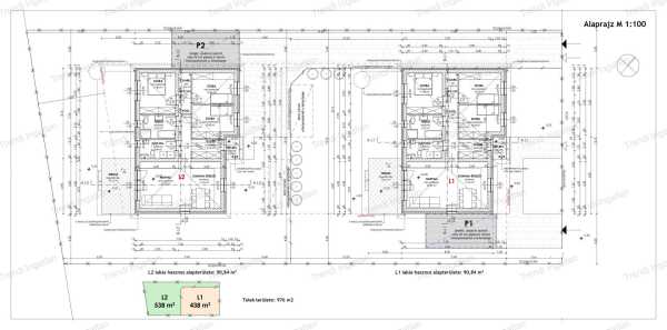
Győrságon új építésű 90,84 nm-es nappali + 3 szobás ikerház 538 nm-es telekrészen eladó. A két ház önállóan megközelíthető, nincs közös fal. A remek elosztású házban amerikai konyhás nappali, 3 szoba, fürdőszoba, háztartási helyiség, előtér, gardrób, közlekedő található. A nappaliból 15,15 nm-es terasz nyílik. A ház 30-as falazóelemből, 15 cm-es homlokzati szigeteléssel, 3 rétegű műanyag nyílászárókkal kerül kivitelezésre. Az ingatlan fűtését és melegvíz ellátását hőszivattyú biztosítja padlófűtéssel. Felár ellenében kerti csap, klíma- és riasztó előkészítés, terasz, térkövezés kérhető. Fűtéskész átadás várható ideje: 2026 ősz Az ingatlan fűtéskész ára: 59.900.000 Ft. Kulcsrakész befejezés kérhető. Az ár tartalmazza a telek árát is. Bővebb információkért forduljon hozzám bizalommal. Hétköznap és hétvégén is várom hívását! Díjmentes, bankfüggetlen hitelügyintézéssel állunk rendelkezésére. A hirdetésben feltüntetett képek illusztrációk.
Lépjen velünk kapcsolatba!
Neizer Éva
Trendi Ingatlan
A partner további hirdetései
Kapcsolatfelvételhez kattintson
A tétel adatlapján feltüntetett leírások a rendelkezésre álló információink alapján készültek. Az eszközök működőképességét, rejtett hibáit nem vizsgáltuk, azokról nincs tudomásunk. Kérjük, hogy licitálás előtt személyesen is tekintsék meg a megvásárolni kívánt tételeket, mert utólag nem tudunk reklamációt elfogadni. A szállítási és bontási költségek a vásárlót terhelik. A szállítást akkor lehet megkezdeni, ha az eladó az erre vonatkozó engedélyt megadta. A leütési ár nem tartalmazza az ÁFÁ-t és a vásárlói felárat.