4432 Nyíregyháza
Ingatlan sorszáma: 6547
580 620 Ft / m2
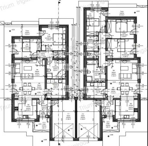
Új építésű ikerház eladó Nyírszőlős központi részén. Fő út szomszédságában található utcákban számtalan új építésű ingatlan kialakítása van folyamatban. A modern minimál stílusú jól átgondolt és tervezett minőségi anyagokból épült ikerház (csak a garázsoknál érintkezik.) 3 szobával,nappali-konyha-étkezővel fürdőszobával, mellékhelyiséggel, mosókonyhával és közlekedővel felszerelet bruttó 129m2 került kialakításra. A 21m2-es garázs elektromos ajtóval felszerelt. A ház falazata Porotherm 30-as tégla ami 15cm szigetelést kapott. Fűtése hőszivattyús rendszerről, padlófűtéssel megoldott. Nyílászárói műanyag hőszigetelt, 7 légkamrás, 3 rétegű üvegezéssel felszerelt. A lézervágott kerítés hamarosan beépítésre kerül mely egy 525m2-es telket fog körbe keríteni. Kialakításra kerül még egy 25m2-es terasz. Az ingatlan 70% készültségnél tart de folyamatosan dolgoznak a befejezésen. Amennyiben az ingatlan megvásárlásához Hitelt szeretne igénybe venni, az elérhető legkedvezőbb feltételekkel, egyedi konstrukciókkal, ingyenes pénzügyi tanácsadással és ügyintézéssel is segítjük Önt!
Lépjen velünk kapcsolatba!
                                                
                        Kovács Diána
                         Trium  Ingatlaniroda
                        A partner további hirdetései
                        
Kapcsolatfelvételhez kattintson
                        
                        
                        A tétel adatlapján feltüntetett leírások a rendelkezésre álló információink alapján készültek. Az eszközök működőképességét, rejtett hibáit nem vizsgáltuk, azokról nincs tudomásunk. Kérjük, hogy licitálás előtt személyesen is tekintsék meg a megvásárolni kívánt tételeket, mert utólag nem tudunk reklamációt elfogadni. A szállítási és bontási költségek a vásárlót terhelik. A szállítást akkor lehet megkezdeni, ha az eladó az erre vonatkozó engedélyt megadta. A leütési ár nem tartalmazza az ÁFÁ-t és a vásárlói felárat.