4531 Nyírpazony
Ingatlan sorszáma: 6537
800 000 Ft / m2
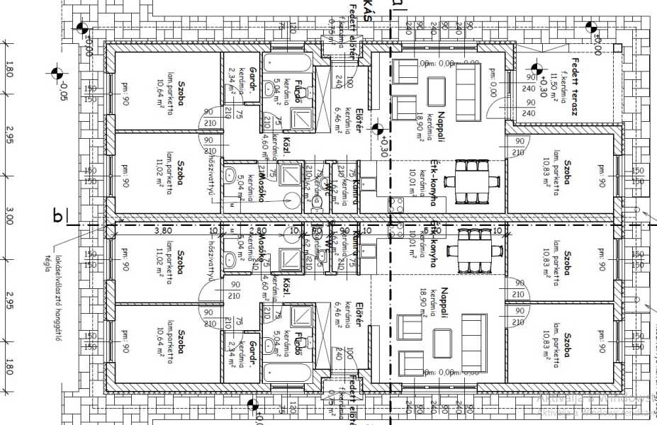
Nyírpazony frekventált részén megbízható kivitelezőtől ikerház eladó! 100 %-os készültség! Az ingatlan egy 100 m2 alapterületű, amerikai konyha + nappali + étkező kialakítású ikerház. Az ingatlan ezen felül még 3 külön nyíló szobával, gardróbbal, tárolóval, mosókonyhával, 2 zuhanyzóval és 2 WC-vel rendelkezik. A hozzá tartozó telekméret 540 m2. A fűtése egy igazán gazdaságos és fenntartható padlófűtéssel megoldott. Wifis kondenzációs gázkazán. A hűtést a nappaliban elhelyezett 3,5 kW-os klíma biztosítja. Minőségi munka, minőségi burkolatok, kiemelkedő környezet, mindezt megbízható kivitelezőtől? Keressen bizalommal, és mutatom a részleteket. Ár: 80 000 000 Ft
Lépjen velünk kapcsolatba!
Gyug Nikoletta
Elements Group
A partner további hirdetései
Kapcsolatfelvételhez kattintson
A tétel adatlapján feltüntetett leírások a rendelkezésre álló információink alapján készültek. Az eszközök működőképességét, rejtett hibáit nem vizsgáltuk, azokról nincs tudomásunk. Kérjük, hogy licitálás előtt személyesen is tekintsék meg a megvásárolni kívánt tételeket, mert utólag nem tudunk reklamációt elfogadni. A szállítási és bontási költségek a vásárlót terhelik. A szállítást akkor lehet megkezdeni, ha az eladó az erre vonatkozó engedélyt megadta. A leütési ár nem tartalmazza az ÁFÁ-t és a vásárlói felárat.