2100 Gödöllő
Ingatlan sorszáma: 577
899 333 Ft / m2
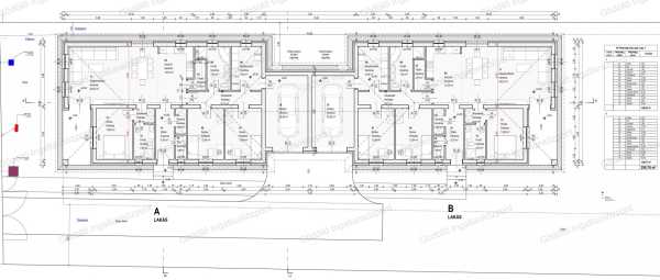
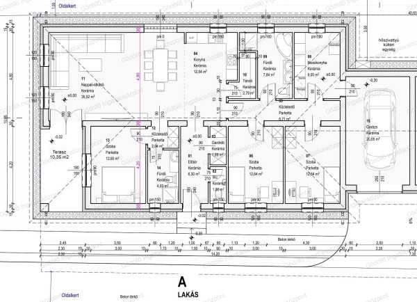
Gödöllő egyik legkeresettebb részén az Alvégen, megbízható kivitelező által épülő teljesen elszeparált, még egyedileg alakítható, variálható elosztású garázsösszeköttetéses ikerházfél eladó! Műszaki paraméterek: - 30-as Porotherm X-Therm tégla falazat + 15cm grafit homlokzati szigetelés, - betonfödém, - Bramac cserépfedés, - antracit színű alumínium fekvőeresz csatorna és lefolyó rendszer, - tetőtérben 20cm vastag üveggyapot szigetelés, - 3 réteg üvegezésű, 5 légkamrás műanyag nyílászárók, - 5 ponton záródó hőszigetelt ajtó, - hőszivattyú padlófűtéssel, fürdőkben kiegészítő törölközőszárítókkal, - Daikin 3.5kw-os klíma, - nincs közös falrész, a két oldalt egy-egy garázs köti össze. Ár tartalmazza: - beltéri ajtókat 60.000.-Ft/db, - hidegburkolatokat 6.500.-Ft/nm, - melegburkolatokat 6.000.-Ft/nm, - kádat 60.000.-Ft/db, - kádtöltő csaptelepet 25.000.-Ft/db, - zuhany csaptelepet 25.000.-Ft/db, - mosdó csaptelepeket 15.000.-Ft/db, - standardmosdókat 20.000.-Ft/db, - tartályos WC-t 35.000.-Ft/db értékben. Elosztás: - Előtér, nappali-konyha-étkező, kamra/tároló, 3 szoba, gardrób, közlekedő, két fürdő, vendégmosdó, mosókonyha + 10,35nm terasz és 20,65nm-es garázs. - Igény esetén még 4 vagy 5 szobás elosztással is kérhető! Telek: - Az ingatlan a telek utcafronti részén helyezkedik el, teljesen elszeparáltan, saját lekerített telekrésze 500nm. Környék: - Nagyon jó környék, csendes zsákutca. - Vonatállomás, buszmegálló, HÉV, iskola, posta, gyógyszertár stb. gyalog 15-20 perc alatt könnyen elérhető. Az ingatlant számos referenciával rendelkező, megbízható kivitelező építi! Burkolatok, belső ajtók a vevői igényei szerint még szabadon választhatók! Komoly érdeklődés esetén a referencia házak személyesen is megtekinthetők! Kérésre teljes műszaki tartalmat, alaprajzot szívesen küldünk! Irányár:134,9Mft Hivatkozási szám: 2518214. Megtekinthető telefonos időpont egyeztetés alapján: Sápi Balázs +36 20 772-2429 sapibalazs@godolloi.hu GÖDÖLLŐ INGATLANKÖZPONT - www.godolloi.hu: Gödöllő és környéke legnagyobb ingatlan választéka /Gödöllő, Szada, Veresegyház, Kistarcsa, Kerepes, Erdőkertes, Fót, Dunakeszi/ eladó-kiadó családi ház, telek, laká
Lépjen velünk kapcsolatba!
Sápi Balázs
Gödöllő Ingatlanközpont
A partner további hirdetései
Kapcsolatfelvételhez kattintson
A tétel adatlapján feltüntetett leírások a rendelkezésre álló információink alapján készültek. Az eszközök működőképességét, rejtett hibáit nem vizsgáltuk, azokról nincs tudomásunk. Kérjük, hogy licitálás előtt személyesen is tekintsék meg a megvásárolni kívánt tételeket, mert utólag nem tudunk reklamációt elfogadni. A szállítási és bontási költségek a vásárlót terhelik. A szállítást akkor lehet megkezdeni, ha az eladó az erre vonatkozó engedélyt megadta. A leütési ár nem tartalmazza az ÁFÁ-t és a vásárlói felárat.