2700 Cegléd Hívja a tulajdonost!
Ingatlan sorszáma: 5755
842 857 Ft / m2
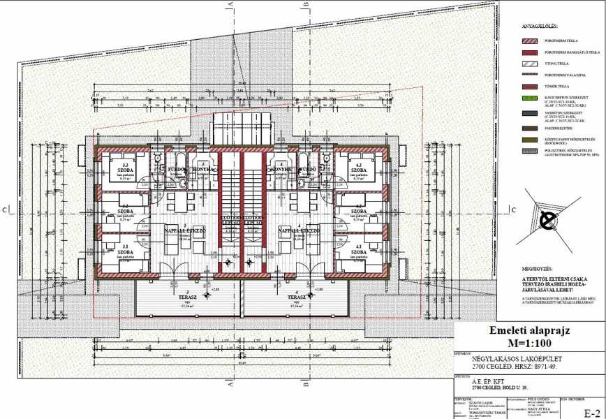
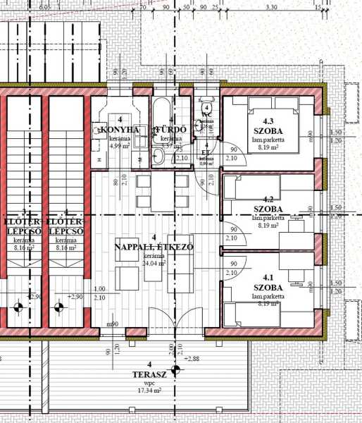
Az ingatlan közvetlenül a tulajdonostól eladó, elérhetősége: Egressi Zsolt +36309437452 Cegléden, új utcában, új lakóparkban épülő, 4 lakásos társasház 1. emeletén 70 m²-es, 4 szobás, erkélyes (13 nm), kb. 100 nm kizárólagos használatú kerttel és a társasház udvarán belül egy darab, burkolt kocsibeállóval rendelkező tégla lakás eladó. A lakás nappalija déli fekvésű, a lakás hőszivattyús fűtésű, A+ energetikai besorolású. Az építkezés folyamatban van, várható átadás: 2025.11.30.
Lépjen velünk kapcsolatba!
Egressi Zsolt (tulajdonos)
Körültekintő Ingatlan - hirdetünk ön helyett!
A partner további hirdetései
Kapcsolatfelvételhez kattintson
A tétel adatlapján feltüntetett leírások a rendelkezésre álló információink alapján készültek. Az eszközök működőképességét, rejtett hibáit nem vizsgáltuk, azokról nincs tudomásunk. Kérjük, hogy licitálás előtt személyesen is tekintsék meg a megvásárolni kívánt tételeket, mert utólag nem tudunk reklamációt elfogadni. A szállítási és bontási költségek a vásárlót terhelik. A szállítást akkor lehet megkezdeni, ha az eladó az erre vonatkozó engedélyt megadta. A leütési ár nem tartalmazza az ÁFÁ-t és a vásárlói felárat.