2100 Gödöllő
Ingatlan sorszáma: 553
879 200 Ft / m2
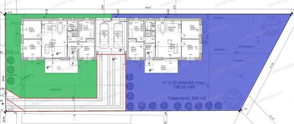
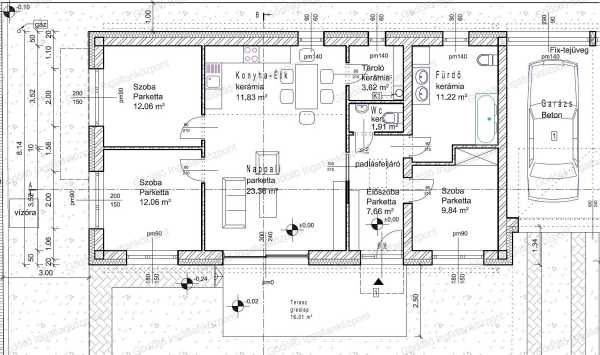
Gödöllő kertvárosi részén új építésű, nappali + 3 szobás garázskapcsolatos ikerház eladó! Műszaki adatok: - vasalt, beton sávalap, - 30-as Porotherm tégla tartófalak, 10 cm Ytong válaszfalak, - 20cm homlokzati hőszigetelés, - 3 rétegű, kívül antracit-belül fehér színű, SALAMANDER nyílászárók, - programozható, automata alumínium redőny minden ablakon és a teraszajtókon is, antracit színben, - födémen 25cm fújt gyapotszigetelés, - antracit Bramac tetőcserép, - DAIKIN Altherma 3RF típusú, saját hőszivattyús rendszer padlófűtéssel, - 4 klíma beépíthető, - mozgásérzékelő, kamera rendszer, napelem, elektromos autó töltő előkészítve. Elosztás: - Előszoba, nappali-konyha-étkező, 3 szoba, kamra, sarokkádas-zuhanyzós fürdő, külön mellékhelyiség + 25nm garázs és 16nm terasz. Telek: - 474nm lekerített telekrész, - utcafronton épített fehér betonkerítés gondozásmentes, antracit alumínium kerítéslécekkel, úszókapuval, - a térkövezett kocsibeállón, valamint a kert részben is kiépítésre kerültek a kerti lámpák elhelyezésének lehetőségei. - A két ikerházfél csak a garázsoknál ér össze, nincs közös fal, a kapuk és kocsibejárók teljesen különállóak, így biztosítva a maximális intimitást. Környék: - Csendes, aszfaltozott utcában, rendezett környezetben található. - Közelben minden megtalálható, ami a kényelmes hétköznapokhoz szükséges: iskola, óvoda, bevásárlási lehetőség, orvosi rendelő, gyógyszertár, vasútállomás, HÉV, buszmegálló, mind néhány percen belül elérhető. Az ingatlant több referenciával rendelkező, megbízható kivitelező építi! Burkolatok, belső ajtók a vevői igényei szerint még szabadon választhatók! A kivitelezés során a legkorszerűbb megoldások lettek alkalmazva. Kérésre teljes műszaki tartalmat, alaprajzot szívesen küldünk! Az építkezés munkafolyamata végig fotókkal dokumentált. (Az alaprajz után szereplő képek a hátsó már elkelt lakásról készültek. ) Irányár: 109,9Mft Hivatkozási szám: 2518175. Megtekinthető telefonos időpont egyeztetés alapján: Sápi Balázs +36 20 772-2429 sapibalazs@godolloi.hu GÖDÖLLŐ INGATLANKÖZPONT - www.godolloi.hu: Gödöllő és környéke legnagyobb ingatlan választéka /Gödöllő, Szada, Veresegyház, Kistarcsa, Kerepes, Erdőkertes, Fót, Dunakeszi/ eladó-kiadó családi ház, telek, lakás! Ingatlan építés és felújítás!
Lépjen velünk kapcsolatba!
Sápi Balázs
Gödöllő Ingatlanközpont
A partner további hirdetései
Kapcsolatfelvételhez kattintson
A tétel adatlapján feltüntetett leírások a rendelkezésre álló információink alapján készültek. Az eszközök működőképességét, rejtett hibáit nem vizsgáltuk, azokról nincs tudomásunk. Kérjük, hogy licitálás előtt személyesen is tekintsék meg a megvásárolni kívánt tételeket, mert utólag nem tudunk reklamációt elfogadni. A szállítási és bontási költségek a vásárlót terhelik. A szállítást akkor lehet megkezdeni, ha az eladó az erre vonatkozó engedélyt megadta. A leütési ár nem tartalmazza az ÁFÁ-t és a vásárlói felárat.