2100 Gödöllő
Ingatlan sorszáma: 551
1 123 256 Ft / m2
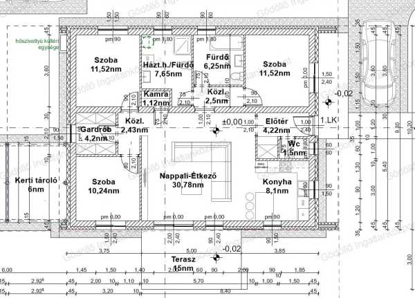
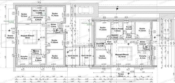
Gödöllő egyik legkeresettebb kertvárosi részén épülő nappali + 3 szobás ikerházfél megbízható referenciákkal rendelkező kivitelezőtől eladó! Műszaki adatok: - 30-as okos tégla falazat - 10cm grafitos és 4cm XPS szigetelés, - 3 réteg üvegezésű műanyag nyílásszárók alumínium külső párkányokkal, - szürke színű elektromos alu redőnyök, szúnyoghálókkal, - alumínium csatorna, - 3x16 amper - fűtésről kondenzációs gázkazán gondoskodik padlófűtéssel, de hőszivattyú is kérhető, - hűtő-fűtő klíma, - tároló választja el a két oldalt, így nincs közös falrész. Ár tartalmazza: - Hideg-meleg burkolatokat 5500.-Ft/nm, - laminált parkettát 4500.-Ft/nm, - mosdókat 20.000.-Ft/db, - kádat 50.000.-Ft/db, - Wc-ket 30.000.-Ft/db, - gázkazánt 350.000.-Ft, - lámpa kiállásokat 25.000.-Ft/db, - bejárati ajtót 250.000.-Ft, - beltéri ajtókat 70.000.-Ft/db értékben. Elosztás: - Előtér, nappali-konyha-étkező, kamra, 3 szoba, gardrób, közlekedő, fürdőszoba, háztartási helyiség/fürdő + 15nm terasz és 6nm tároló. Telek: - Teljesen elszeparált, utcafronton antracit alumínium kerítés kerül kiépítésre. Burkolatok, belső ajtók a vevői igényei szerint még szabadon választhatók! Kérésre teljes műszaki tartalmat, alaprajzot szívesen küldünk! Várható átadás 2026 nyár Irányár: 144,9MFt Hivatkozási szám: 2518170. Megtekinthető telefonos időpont egyeztetés alapján: Sápi Balázs +36 20 772-2429 sapibalazs@godolloi.hu GÖDÖLLŐ INGATLANKÖZPONT - www.godolloi.hu: Gödöllő és környéke legnagyobb ingatlan választéka /Gödöllő, Szada, Veresegyház, Kistarcsa, Kerepes, Erdőkertes, Fót, Dunakeszi/ eladó-kiadó családi ház, telek, lakás! Ingatlan építés és felújítás!
Lépjen velünk kapcsolatba!
Sápi Balázs
Gödöllő Ingatlanközpont
A partner további hirdetései
Kapcsolatfelvételhez kattintson
A tétel adatlapján feltüntetett leírások a rendelkezésre álló információink alapján készültek. Az eszközök működőképességét, rejtett hibáit nem vizsgáltuk, azokról nincs tudomásunk. Kérjük, hogy licitálás előtt személyesen is tekintsék meg a megvásárolni kívánt tételeket, mert utólag nem tudunk reklamációt elfogadni. A szállítási és bontási költségek a vásárlót terhelik. A szállítást akkor lehet megkezdeni, ha az eladó az erre vonatkozó engedélyt megadta. A leütési ár nem tartalmazza az ÁFÁ-t és a vásárlói felárat.