2100 Gödöllő
Ingatlan sorszáma: 532
1 033 793 Ft / m2
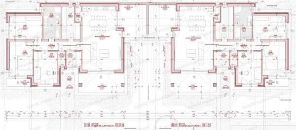
Gödöllő keresett, kertvárosi részén, csendes, nyugodt környéken, referenciákkal rendelkező, megbízható kivitelező által épülő modern, nappali + 3 szobás ikerházfél eladó! Műszaki adatok: - 30-as PTH tégla falazat + 12cm grafit szigetelés, - 10cm válaszfalak, glettelve, fehér színűre festve, - lábazaton zsalukő, szigetelve, vakolva, - 5 légkamrás műanyag nyílászárók 3 rétegű üvegezéssel, középszürke színben, - monolit vasbetonfödém, - Antracit cserépfedés, - középszürke színű ereszcsatorna, - Atlantic loria hőszivattyú beépített melegvíz tárolóval, minden helyiségben padlófűtés, fürdőben törülközőszárítós radiátor, - riasztó, klíma előkészítés. Ár tartalmazza: - beltéri ajtókat 60.000.-Ft/db, - hideg- és melegburkolatokat 5.000.-Ft/nm, - teraszburkolatot 6.500.-Ft/nm, - mosdókat 20.000.-Ft/db, - csaptelepeket 15.000.-Ft/db, - beépített Geberit Wc kagylókat 20.000.-Ft/db, A burkolatok és a szaniterek a vevő igényei szerint még szabadon választhatók! Elosztás: - Előszoba, nappali-konyha-étkező, kamra, 3 szoba, közlekedő, tágas fürdőszoba, vendégmosdó, háztartási helyiség + 14,28nm fedett terasz és 14nm nyári konyha Telek: - teljesen elszeparált kb.550nm telek, - parkoláshoz kocsibeálló kerül kialakításra. Környék: - Nagyon jó környék, gyalog minden 5 percen belül elérhető. Várható kulcsrakész átadás 2026.03. Kérésre teljes műszaki tartalmat, alaprajzot szívesen küldünk! Irányár: 149,9Mft Hivatkozási szám: 2518132. Megtekinthető telefonos időpont egyeztetés alapján: Sápi Balázs +36 20 772-2429 sapibalazs@godolloi.hu GÖDÖLLŐ INGATLANKÖZPONT - www.godolloi.hu: Gödöllő és környéke legnagyobb ingatlan választéka /Gödöllő, Szada, Veresegyház, Kistarcsa, Kerepes, Erdőkertes, Fót, Dunakeszi/ eladó-kiadó családi ház, telek, lakás! Ingatlan építés és felújítás!
Lépjen velünk kapcsolatba!
Sápi Balázs
Gödöllő Ingatlanközpont
A partner további hirdetései
Kapcsolatfelvételhez kattintson
A tétel adatlapján feltüntetett leírások a rendelkezésre álló információink alapján készültek. Az eszközök működőképességét, rejtett hibáit nem vizsgáltuk, azokról nincs tudomásunk. Kérjük, hogy licitálás előtt személyesen is tekintsék meg a megvásárolni kívánt tételeket, mert utólag nem tudunk reklamációt elfogadni. A szállítási és bontási költségek a vásárlót terhelik. A szállítást akkor lehet megkezdeni, ha az eladó az erre vonatkozó engedélyt megadta. A leütési ár nem tartalmazza az ÁFÁ-t és a vásárlói felárat.