2100 Gödöllő
Ingatlan sorszáma: 516
885 816 Ft / m2
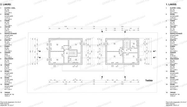
Gödöllő kertvárosi részén megbízható számos referenciával rendelkező építőtől teljesen elszeparált, garázs összeköttetéssel rendelkező, nappali + 4 szobás kétszintes ikerház mindkét fele eladó! Műszaki paraméterek: - 30-as Porotherm X-Therm tégla falazat + 15cm grafit homlokzati szigetelés, - e-gerendás födém, beton béléstesttel kitöltve, - Bramac cserépfedés, - antracit színű alumínium fekvőeresz csatorna és lefolyó rendszer, - tetőtérben 20cm vastag üveggyapot szigetelés, - 3 réteg üvegezésű, 5 légkamrás műanyag nyílászárók, - 5 ponton záródó hőszigetelt ajtó, - hőszivattyú padlófűtéssel, fürdőkben kiegészítő törölközőszárítókkal, - nincs közös falrész, a két oldalt egy-egy garázs köti össze. Elosztás: - Földszint: előtér, nappali-konyha-étkező, kamra, szoba, fürdő + 21nm-es garázs és 15nm-es terasz. - Tetőtér: 3 szoba, közlekedő, fürdőszoba. Telek: - Az ikerházak egymás mellett kerülnek kivitelezésre, teljesen elszeparáltan. Környék: - Buszmegálló, hév, élelmiszerbolt, orvosi rendelő gyalog kb.15 perc alatt könnyen elérhető, az M3-as autópálya kocsival 15 percre van. Az ingatlant számos referenciával rendelkező, megbízható kivitelező építi! Burkolatok, belső ajtók a vevői igényei szerint még szabadon választhatók! Komoly érdeklődés esetén a referencia házak személyesen is megtekinthetők! Kérésre teljes műszaki tartalmat, alaprajzot szívesen küldünk! Irányár: 124,9Mft Hivatkozási szám: 2518082. Megtekinthető telefonos időpont egyeztetés alapján: Sápi Balázs +36 20 772-2429 sapibalazs@godolloi.hu GÖDÖLLŐ INGATLANKÖZPONT - www.godolloi.hu: Gödöllő és környéke legnagyobb ingatlan választéka /Gödöllő, Szada, Veresegyház, Kistarcsa, Kerepes, Erdőkertes, Fót, Dunakeszi/ eladó-kiadó családi ház, telek, laká
Lépjen velünk kapcsolatba!
Sápi Balázs
Gödöllő Ingatlanközpont
A partner további hirdetései
Kapcsolatfelvételhez kattintson
A tétel adatlapján feltüntetett leírások a rendelkezésre álló információink alapján készültek. Az eszközök működőképességét, rejtett hibáit nem vizsgáltuk, azokról nincs tudomásunk. Kérjük, hogy licitálás előtt személyesen is tekintsék meg a megvásárolni kívánt tételeket, mert utólag nem tudunk reklamációt elfogadni. A szállítási és bontási költségek a vásárlót terhelik. A szállítást akkor lehet megkezdeni, ha az eladó az erre vonatkozó engedélyt megadta. A leütési ár nem tartalmazza az ÁFÁ-t és a vásárlói felárat.