2100 Gödöllő
Ingatlan sorszáma: 512
1 094 286 Ft / m2
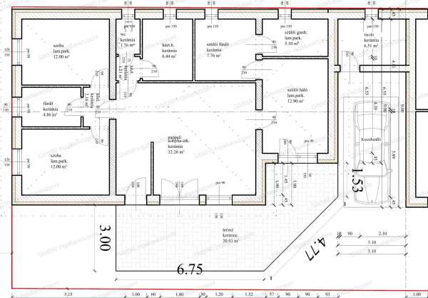
Gödöllő központi részén, csendes, nyugodt utcában, megbízható referenciákkal rendelkező kivitelező által épülő nappali + 3 szobás ikerházfél eladó! Műszaki adatok: - 30-as PTH tégla falazat + 15cm dryvit szigetelés, - betoncserépfedés, - 3 réteg üvegezésű műanyag nyílásszárók, igény esetén redőnyökkel, szúnyoghálókkal, - fűtésről kondenzációs gázkazán gondoskodik padlófűtéssel, de hőszivattyú is kérhető, - 2 db klíma lesz kiépítve 150EFt / db áron 3,5kw-os - fedett kocsibeálló választja el a két oldalt, így nincs közös falrész. Ár tartalmazza: - Hideg-meleg burkolatokat 5.000.-Ft/nm, - bejárati ajtót 130.000.-Ft, - beltéri ajtókat 50.000.-Ft/db, - csaptelepeket 20.000.-ft/db, - kádat 50.000.-Ft/db, - mosdókat 20.000.-Ft/db, - Wc-t (tartállyal) 30.000-Ft/db, - kazánt 300.000.-Ft értékben. Elosztás: - Nappali-konyha-étkező, 3 szoba, gardrób, közlekedő, két fürdőszoba, vendégmosdó, háztartási helyiség + 6,51nm-es tároló és 30,93nm-es terasz. Telek: - Saját lekerített telekrésze 370m. - Parkoláshoz fedett kocsibeálló kerül kialakításra. Környék: - Központi elhelyezkedésének köszönhetően minden percek alatt könnyen elérhető! Az ingatlant megbízható, referenciákkal rendelkező kivitelező építi! Kérésre teljes műszaki tartalmat, alaprajzot szívesen küldünk! Várható kulcsrakész átadás: 2026.szeptember vége Irányár: 114.900.000.-Ft Hivatkozási szám:2518075. Megtekinthető telefonos időpont egyeztetés alapján: Sápi Balázs (20) 772-2429 sapibalazs@godolloi.hu GÖDÖLLŐ INGATLANKÖZPONT - www.godolloi.hu : Gödöllő és környéke legnagyobb ingatlan választéka /Gödöllő, Szada, Veresegyház, Kistarcsa, Kerepes, Erdőkertes, Fót, Dunakeszi/ eladó-kiadó családi ház, telek, lakás! Ingatlan építés és felújítás!
Lépjen velünk kapcsolatba!
Sápi Balázs
Gödöllő Ingatlanközpont
A partner további hirdetései
Kapcsolatfelvételhez kattintson
A tétel adatlapján feltüntetett leírások a rendelkezésre álló információink alapján készültek. Az eszközök működőképességét, rejtett hibáit nem vizsgáltuk, azokról nincs tudomásunk. Kérjük, hogy licitálás előtt személyesen is tekintsék meg a megvásárolni kívánt tételeket, mert utólag nem tudunk reklamációt elfogadni. A szállítási és bontási költségek a vásárlót terhelik. A szállítást akkor lehet megkezdeni, ha az eladó az erre vonatkozó engedélyt megadta. A leütési ár nem tartalmazza az ÁFÁ-t és a vásárlói felárat.