4400 Nyíregyháza Belváros
Ingatlan sorszáma: 5093
1 068 039 Ft / m2
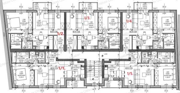
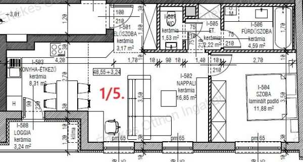
Nyíregyházán a Hatzel tér közelében, eladásra kínálunk egy első emeleti, új építésű, 51 nm-s lakást! Minőségi kivitelezés, bizonyított szakmai háttérrel! Főbb paraméterek: - Tégla falazat + homlokzati szigetelés - 10 lakásos, 3 szintes társasház: Fsz, 1 em., 2. em., garázs, autó beálló - 2 szobás, Loggiás - Klimatizált - Kondenzációs gázkazán, (hidegburkolat alatt padlófűtés, a szobákban radiátoros hőleadókkal) - Műanyag nyílászáró - Hangszigetelt válaszfalak - A garázs külön megvásárolható 14,5 M Ft-ért - Jelenlegi készültségi szint 35%, várható átadás: 2026 nyara 1.em./5-s lakás:47,72 nm + 3,60 nm Loggia= 54.470.000 Ft 2.em./1-s lakás:44,90 nm + 3,60 nm Loggia= 51.370.000 Ft 2.em.4-s lakás:46,40 nm + 4,90 nm Erkély= 53.740.000 Ft 2.em./5-s lakás:47,72 nm + 3,60 nm Loggia= 51.370.000 Ft Teljes körű ügyintézés az első lépéstől a kulcsátadásig! - Hitelügyintézés - Megbízható ügyvéd - Energetikai tanúsítvány - Zökkenőmentes lebonyolítás
Lépjen velünk kapcsolatba!
Gajdos Brigitta
Értékes Otthon Ingatlan
A partner további hirdetései
Kapcsolatfelvételhez kattintson
A tétel adatlapján feltüntetett leírások a rendelkezésre álló információink alapján készültek. Az eszközök működőképességét, rejtett hibáit nem vizsgáltuk, azokról nincs tudomásunk. Kérjük, hogy licitálás előtt személyesen is tekintsék meg a megvásárolni kívánt tételeket, mert utólag nem tudunk reklamációt elfogadni. A szállítási és bontási költségek a vásárlót terhelik. A szállítást akkor lehet megkezdeni, ha az eladó az erre vonatkozó engedélyt megadta. A leütési ár nem tartalmazza az ÁFÁ-t és a vásárlói felárat.