2100 Gödöllő
Ingatlan sorszáma: 509
1 257 826 Ft / m2
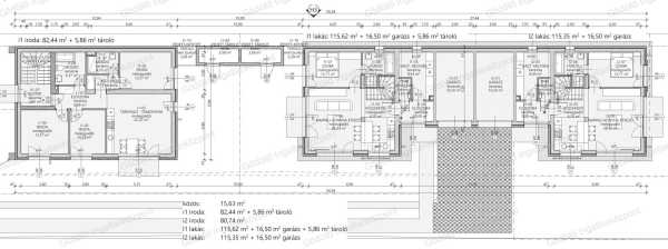
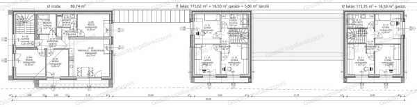
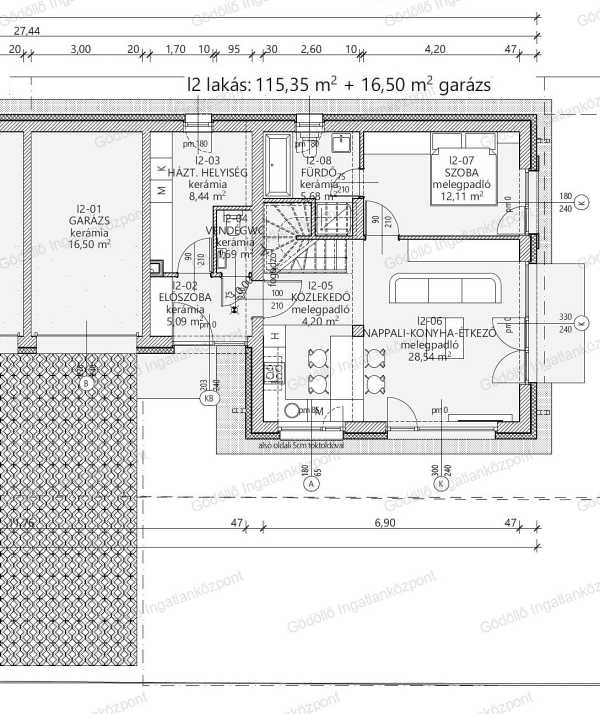
Gödöllő keresett kastély mögötti részén az Alvégben, referenciákkal rendelkező, megbízható kivitelező által épülő nappali + 4 szobás, garázskapcsolatos ikerházfél eladó! Műszaki adatok: - 30-as PTH tégla falazat + 12cm grafit szigetelés, - 10cm válaszfalak, glettelve, fehér színűre festve, - lábazaton zsalukő, szigetelve, vakolva, - 5 légkamrás műanyag nyílászárók 3 rétegű üvegezéssel, fehér színben, - monolit vasbetonfödém, - antracitszürke Bramac beton cserépfedés, - antracit ereszcsatorna, - Atlantic loria hőszivattyú beépített melegvíz tárolóval, minden helyiségben padlófűtés, fürdőben törülközőszárítós radiátor, - riasztó, klíma előkészítés. Ár tartalmazza: - beltéri ajtókat 60.000.-Ft/db, - hideg- és melegburkolatokat 5.000.-Ft/nm, - teraszburkolatot 6.500.-Ft/nm, - mosdókat 20.000.-Ft/db, - csaptelepeket 15.000.-Ft/db, - beépített Geberit Wc kagylókat 20.000.-Ft/db, A burkolatok és a szaniterek a vevő igényei szerint még szabadon választhatók! Elosztás: - Előszoba, teraszkapcsolatos nappali-konyha-étkező, 4 szoba, közlekedő, két fürdőszoba, vendégmosdó, háztartási helyiség + 16,5nm garázs Telek: - 550nm telekhányad 430nm kertrésszel. Környék: - Vasútállomás, hévmegálló, helyi buszmegálló, egyetem, iskola, élelmiszerbolt, uszoda néhány perc sétával elérhető, Budapest az M3-as autópályán keresztül személyautóval kb. 20 perc. Várható kulcsrakész átadás 2026.03. Kérésre teljes műszaki tartalmat, alaprajzot szívesen küldünk! Irányár: 144,65Mft Hivatkozási szám: 2518055. Megtekinthető telefonos időpont egyeztetés alapján: Sápi Balázs +36 20 772-2429 sapibalazs@godolloi.hu GÖDÖLLŐ INGATLANKÖZPONT - www.godolloi.hu: Gödöllő és környéke legnagyobb ingatlan választéka /Gödöllő, Szada, Veresegyház, Kistarcsa, Kerepes, Erdőkertes, Fót, Dunakeszi/ eladó-kiadó családi ház, telek, lakás! Ingatlan építés és felújítás!
Lépjen velünk kapcsolatba!
Sápi Balázs
Gödöllő Ingatlanközpont
A partner további hirdetései
Kapcsolatfelvételhez kattintson
A tétel adatlapján feltüntetett leírások a rendelkezésre álló információink alapján készültek. Az eszközök működőképességét, rejtett hibáit nem vizsgáltuk, azokról nincs tudomásunk. Kérjük, hogy licitálás előtt személyesen is tekintsék meg a megvásárolni kívánt tételeket, mert utólag nem tudunk reklamációt elfogadni. A szállítási és bontási költségek a vásárlót terhelik. A szállítást akkor lehet megkezdeni, ha az eladó az erre vonatkozó engedélyt megadta. A leütési ár nem tartalmazza az ÁFÁ-t és a vásárlói felárat.