4531 Nyírpazony Kabalás
Ingatlan sorszáma: 5034
789 524 Ft / m2
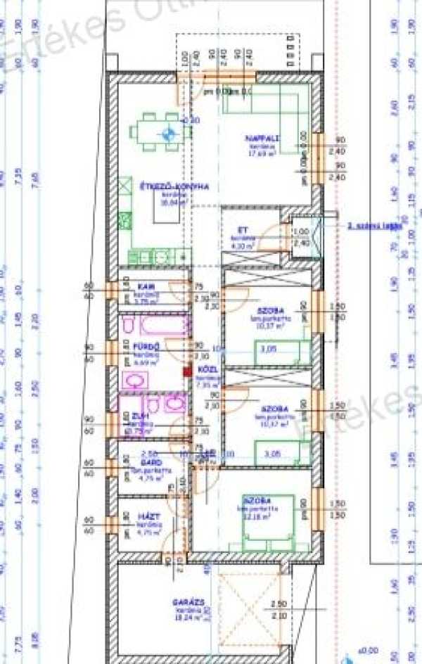
Nyírpazony csendes, családias részén – Kabaláson – eladásra kínálok egy új építésű, modern iker-családi házat, mely csak a garázsnál érintkezik a szomszéd ingatlannal, így a lakóterek teljes intimitása biztosított. Főbb adatok: Lakóterület: 105 m² Garázs: 18,24 m² Telekméret: 400 m² A praktikus és élhető elrendezésű otthonban 3 kényelmes hálószoba, közel 37 m²-es amerikai konyhás nappali, 2 fürdőszoba, gardrób, kamra, valamint háztartási helyiség szolgálja a család kényelmét. Műszaki tartalom: 30-as tégla falazat, 10 cm grafitos hőszigetelés, színes, 3 rétegű üvegezésű nyílászárók, Bosch gázkazán, padlófűtés + radiátor kombinált fűtési rendszer, 2 db termosztát, klíma a nappaliban. Az ingatlan kivitelezője igényes munkájáról és számos sikeres referenciájáról ismert, így az új tulajdonos egy minőségi, tartós otthonba költözhet. A 400 m²-es telek ideális méretű kert kialakításához, teraszozáshoz vagy akár egy kis játszótérhez is. Nyugodt környezet, kiváló szomszédság, mégis pár percre Nyíregyházától – ideális választás fiatal családoknak! Átadás: 2027. év eleje A jelenlegi áraknak megfelelő költség keret között tudja kiválasztani a belső burkolatokat, beltéri ajtókat, szanitereket csak, hogy minden a családja igényére legyen szabva! Legyen az Ön családja is Kabalás-i lakos! Az ingatlan CSOK+, Otthon Start Hitelre is megvásárolható! Teljeskörű bankfüggetlen díjmentes ügyintézésessel várom hívását!
Lépjen velünk kapcsolatba!
Hajnal Viktória
Értékes Otthon Ingatlan
A partner további hirdetései
Kapcsolatfelvételhez kattintson
A tétel adatlapján feltüntetett leírások a rendelkezésre álló információink alapján készültek. Az eszközök működőképességét, rejtett hibáit nem vizsgáltuk, azokról nincs tudomásunk. Kérjük, hogy licitálás előtt személyesen is tekintsék meg a megvásárolni kívánt tételeket, mert utólag nem tudunk reklamációt elfogadni. A szállítási és bontási költségek a vásárlót terhelik. A szállítást akkor lehet megkezdeni, ha az eladó az erre vonatkozó engedélyt megadta. A leütési ár nem tartalmazza az ÁFÁ-t és a vásárlói felárat.