4400 Nyíregyháza
Ingatlan sorszáma: 5002
472 222 Ft / m2
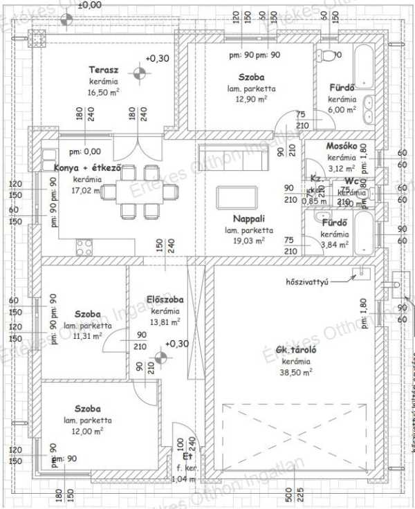
Ha egy kompromisszummentes, modern, energiahatékony otthont keresel Nyíregyháza–Sóstóhegy csendes, természetközeli részén, akkor ezt a házat neked építik! A 180 m²-es, könnyűszerkezetes családi ház minden olyan kényelmi és technikai extrát tartalmaz, amit a 21. században elvárhatsz: - 3 szoba, köztük egy külön "szülői lakrész" saját fürdővel - Amerikai konyhás nappali és különálló fürdő + WC - Padlófűtés + radiátorok – tökéletes hőkomfort - 8 kW-os hőszivattyú, és napelem rendszer – alacsony fenntartási költségek - Két hűtő-fűtő klíma (nappali + szülői háló), riasztó + kamera rendszer - 3 rétegű, 7 kamrás műanyag nyílászárók, teljes szigetelési csomag: kívül 10 cm nikecell, falak között kőzetgyapot, és belül +5 cm szigetelés - Dupla garázs - 38 m2, ami padlófütéssel van ellátva, így hideg időben még barkácsolni is lehet - Térkövezés a teraszig, és az utcafronti kerítés benne van az árban - Az udvarra tervezve van egy medence is, amire az engedély megvan, később kialakítható Ez a ház a jövő otthona már ma! Extra szigetelésének köszönhetően hőkamerával is látható lesz, hogy a hőtartása felülmúlja sok hagyományos, téglából épült családi házét. Precíz munkával, prémium anyagokból épült. Az 1406 m²-es telek elegendő teret nyújt kerthez, pihenéshez, akár extra építményekhez is. Villany, víz, csatorna bekötve. Gázra nincs szükség – a modern technológia ezt kiváltja! Ár: 85 millió Ft Ne várd meg, míg másé lesz – hívj most: +36 70 439 8133
Lépjen velünk kapcsolatba!
Bessenyei Róbert
Értékes Otthon Ingatlan
A partner további hirdetései
Kapcsolatfelvételhez kattintson
A tétel adatlapján feltüntetett leírások a rendelkezésre álló információink alapján készültek. Az eszközök működőképességét, rejtett hibáit nem vizsgáltuk, azokról nincs tudomásunk. Kérjük, hogy licitálás előtt személyesen is tekintsék meg a megvásárolni kívánt tételeket, mert utólag nem tudunk reklamációt elfogadni. A szállítási és bontási költségek a vásárlót terhelik. A szállítást akkor lehet megkezdeni, ha az eladó az erre vonatkozó engedélyt megadta. A leütési ár nem tartalmazza az ÁFÁ-t és a vásárlói felárat.