9000 Győr Szitásdomb
Ingatlan sorszáma: 4953
860 633 Ft / m2
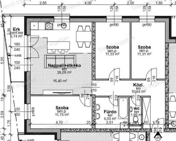
2026-ban átadás! Már csak két szabad lakás van! Győr-Belvárosától pár perces autóútra, Szitásdomb új kialakítású részén új építésű 29 lakásos társasházban nappali + 3 szobás lakás eladó. Az 1. emeleten található 79,24 nm-es ingatlanban amerikai konyhás nappali, 3 szoba, fürdőszoba, külön WC, közlekedő, előtér kerül kialakításra. A nappaliból 6,74 nm-es erkély nyílik. Az ingatlan fűtéskész ára: 67.990.000 Ft. Kulcsrakész befejezés kérhető. Gépkocsibeálló ára: 1.700.000 Ft Lehetőség van tároló vásárlására is, ára: 1.500.000 Ft-tól. A társasház Szitásdomb új lakóparkjában épül. A földszinti lakások terasszal, az emeleti lakások erkéllyel/terasszal rendelkeznek. A társasház zárt udvarán felszíni parkolók kerülnek kialakításra. A társasház 30 cm-es falazóelemből, 20 cm-es homlokzati hőszigeteléssel épül. A műanyag, hőszigetelt nyílászárók 6 légkamrásak, 3 rétegű üvegezéssel rendelkeznek. Az ár tartalmazza a redőny előkészítését lefutókkal, az elektromos kiépítés felár ellenében kérhető. A társasház fűtését hőszivattyú biztosítja. Lakásonként egyedi hőmennyiségmérő, a fürdőszobában törölközőszárító radiátor kerül. Klímakiépítés igény esetén felár ellenében kérhető. A társasház átadásának tervezett időpontja: 2026 nyár Bővebb információkért keressen bizalommal! Hétköznap és hétvégén is várom hívását! A hirdetésben feltüntetett képek illusztrációk.
Lépjen velünk kapcsolatba!
Neizer Éva
Trendi Ingatlan
A partner további hirdetései
Kapcsolatfelvételhez kattintson
A tétel adatlapján feltüntetett leírások a rendelkezésre álló információink alapján készültek. Az eszközök működőképességét, rejtett hibáit nem vizsgáltuk, azokról nincs tudomásunk. Kérjük, hogy licitálás előtt személyesen is tekintsék meg a megvásárolni kívánt tételeket, mert utólag nem tudunk reklamációt elfogadni. A szállítási és bontási költségek a vásárlót terhelik. A szállítást akkor lehet megkezdeni, ha az eladó az erre vonatkozó engedélyt megadta. A leütési ár nem tartalmazza az ÁFÁ-t és a vásárlói felárat.