9000 Győr Szitásdomb
Ingatlan sorszáma: 4920
1 030 170 Ft / m2
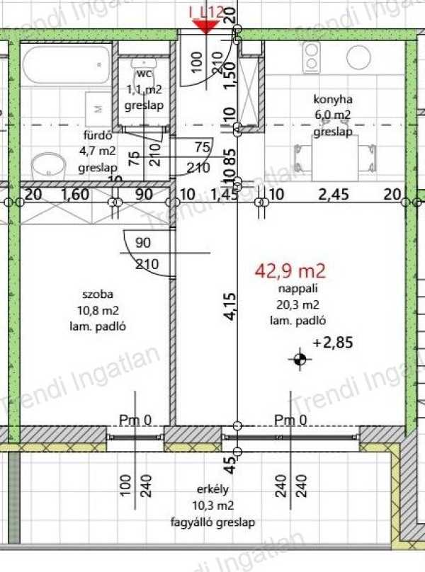
Remek ajánlat! Győr-Belvárosától pár perces autóútra, Szitásdomb új kialakítású részén épülő 35 lakásos társasházban különböző alapterületű lakások eladók. A meghirdetett 1. emeleten található 42,90 nm-es lakásban amerikai konyhás nappali, szoba, fürdőszoba, külön WC, előtér kerül kialakításra. Nappaliból 10,30 nm-es erkély nyílik. A lakás fűtéskész ára: 44.297.295 Ft. Kulcsrakész befejezés kérhető. Gépkocsibeállló ára: 1.900.000 Ft Garázs ára: 12.000.000 Ft-tól Lehetőség van tároló vásárlására is, ára: 1.508.000 Ft-tól Várható átadás: 2027 ősz Magas műszaki tartalommal épülő társasház 30 cm-es falazóelemből, 15 cm-es homlokzati szigeteléssel épül. A nyílászárók 5 légkamrás profilrendszerű, 3 rétegű üvegezéssel rendelkeznek. A rejtett alumínium elektromos redőny előkészítését és a redőny dobok beépítését a vételár tartalmazza. Az épület fűtését és melegvíz-ellátását hőszivattyú és egy kiegészítő gázkazán biztosítja. Minden lakás 1 db klíma előkészítéssel rendelkezik. Az épület tetőszerkezetén napelemes rendszer kerül kialakításra, ami a társasház működésének költségeit fogja csökkenteni. Szitásdomb új kialakítású részén épülő társasházban különböző alapterületű lakások kerülnek kialakításra, így minden kedves érdeklődő megtalálhatja álmai otthonát. A földszinti lakások kertkapcsolattal és terasszal, az emeleti lakások erkéllyel rendelkeznek. A társasház zárt udvarán felszíni parkolók kerülnek kialakításra. Bővebb információkért forduljon hozzám bizalommal. Hétköznap és hétvégén is várom hívását! Díjmentes, bankfüggetlen hitelügyintézéssel állunk rendelkezésére. A hirdetésben feltüntetett képek illusztrációk.
Lépjen velünk kapcsolatba!
Neizer Éva
Trendi Ingatlan
A partner további hirdetései
Kapcsolatfelvételhez kattintson
A tétel adatlapján feltüntetett leírások a rendelkezésre álló információink alapján készültek. Az eszközök működőképességét, rejtett hibáit nem vizsgáltuk, azokról nincs tudomásunk. Kérjük, hogy licitálás előtt személyesen is tekintsék meg a megvásárolni kívánt tételeket, mert utólag nem tudunk reklamációt elfogadni. A szállítási és bontási költségek a vásárlót terhelik. A szállítást akkor lehet megkezdeni, ha az eladó az erre vonatkozó engedélyt megadta. A leütési ár nem tartalmazza az ÁFÁ-t és a vásárlói felárat.