2112 Veresegyház
Ingatlan sorszáma: 467
992 199 Ft / m2
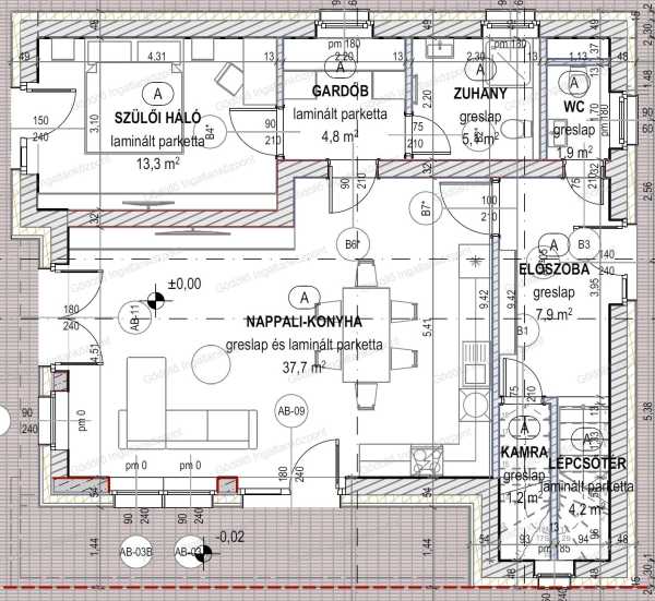
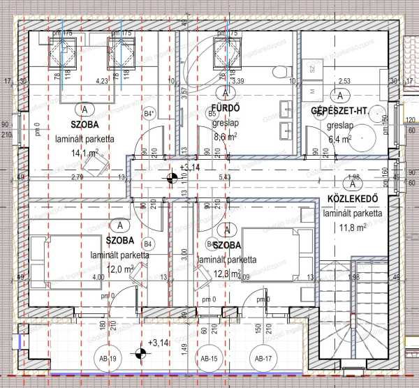
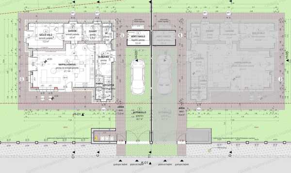
Veresegyház központi részén, nagyon jó környéken, modern kétszintes kivitelezésben épülő, közel 0 energiaigényű, nappali + 4 szobás ikerházfél eladó! A 141nm-es épület 30-as porotherm dryfix tégla falazattal, 15cm vastag homlokzati szigeteléssel, betoncserép fedéssel, monolit vasbeton, ill. faszerkezetű födémmel épül. Földszinten előszoba, nappali-konyha-étkező, kamra, szülő hálószoba, gardrób, zuhanyzós fürdőszoba és vegy vendégmosdó lesz kialakítva. Emeleten 3 szoba, közlekedő, kádas fürdőszoba és gépészeti helyiség kap majd helyet. Az épület tervezésnél fontos szempont volt a fenntarthatóság, a padlófűtésnek és a hőszivattyúnak köszönhetően 0 rezsivel üzemeltethető, energetikai besorolása A+. Nincs közös falrész, 42,7nm-es fedett kocsibeálló + 5nm-es tároló választja el a másik oldaltól. A napelem előkészítése az ár részét képezi! A hirdetésben szereplő információk és látványtervek tájékoztató jellegűek, pontos műszaki leírást, opciós listát az érdeklődőknek kérésre szívesen küldünk e-mailben! Várható kulcsrakész átadás: 2025. II. félév Irányár: 139,9Mft Hivatkozási szám: 2517889. Megtekinthető telefonos időpont egyeztetés alapján: Pintér Roland +36 20 539-1988 pinterroland@godolloi.hu GÖDÖLLŐ INGATLANKÖZPONT - www.godolloi.hu: Gödöllő és környéke legnagyobb ingatlan választéka /Gödöllő, Szada, Veresegyház, Kistarcsa, Kerepes, Erdőkertes/ eladó-kiadó családi ház, telek, lakás! Ingatlan építés és felújítás!
Lépjen velünk kapcsolatba!
Pintér Roland
Gödöllő Ingatlanközpont
A partner további hirdetései
Kapcsolatfelvételhez kattintson
A tétel adatlapján feltüntetett leírások a rendelkezésre álló információink alapján készültek. Az eszközök működőképességét, rejtett hibáit nem vizsgáltuk, azokról nincs tudomásunk. Kérjük, hogy licitálás előtt személyesen is tekintsék meg a megvásárolni kívánt tételeket, mert utólag nem tudunk reklamációt elfogadni. A szállítási és bontási költségek a vásárlót terhelik. A szállítást akkor lehet megkezdeni, ha az eladó az erre vonatkozó engedélyt megadta. A leütési ár nem tartalmazza az ÁFÁ-t és a vásárlói felárat.