4405 Nyíregyháza Borbánya
Ingatlan sorszáma: 4606
333 333 Ft / m2
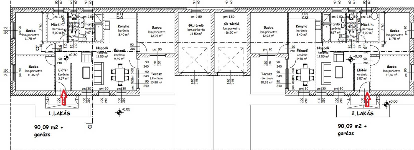
BEFEKTETÉSI LEHETŐSÉG ÚJ ÉPÍTÉSŰ LAKÓPARKBAN- IKERHÁZ SZERKEZETKÉSZ ÁLLAPOT! Új építésű nyíregyházi lakóparkban , Borbánya és Kistelekiszőlő határán kínálunk megvételre egy ikerház projektet szerkezetkész állapotban 2026 év közepi átadással. A konstrukció ideális befektetőknek , valamint barátoknak vagy családtagoknak, akik egymás közelében szeretnének élni, de nem szeretnének külön telekvásárlással és közművesítéssel foglalkozni. A két ikerházrész együttes vételára 60 M Ft, amely kiváló belépési pont az új építésű piacon, hosszú távú növekedési potenciállal. Főbb jellemzők házrészenként: - 90 m2 nettó alapterület - 450 m2 telek terület - 3 szoba+ nappalis kialakítás - 30-as porotherm tégla falazat - Kontyolt nyeregtető, cserepes héjazat A maximális privát szféra érdekében csak a garázsoknál érintkező közös falazat. Hőszivattyús padlófűtésre tervezve, ezért villany, víz és csatorna közmű ellátottsággal rendelkezik. Élhető méretű pihenőkert mindkét lakáshoz. Az ingatlan aszfaltozott utcában helyezkedik el , az úttól 50 méterre visszahúzva, ezzel is csökkentve a zaj és porszennyezést. Buszmegálló 400 m-re található. (A látványfotókon még csak az egyik házhoz tartozik garázs, de az alaprajzon már látható, hogy mindkét házrész rendelkezik gépkocsi tárolóval.) Bővebb infóért , akár a kivitelező referencia ingatlanjainak megtekintéséért keressen bizalommal!
Lépjen velünk kapcsolatba!
Balogh István
Elements Group
A partner további hirdetései
Kapcsolatfelvételhez kattintson
A tétel adatlapján feltüntetett leírások a rendelkezésre álló információink alapján készültek. Az eszközök működőképességét, rejtett hibáit nem vizsgáltuk, azokról nincs tudomásunk. Kérjük, hogy licitálás előtt személyesen is tekintsék meg a megvásárolni kívánt tételeket, mert utólag nem tudunk reklamációt elfogadni. A szállítási és bontási költségek a vásárlót terhelik. A szállítást akkor lehet megkezdeni, ha az eladó az erre vonatkozó engedélyt megadta. A leütési ár nem tartalmazza az ÁFÁ-t és a vásárlói felárat.