2364 Ócsa
Ingatlan sorszáma: 4275
873 016 Ft / m2
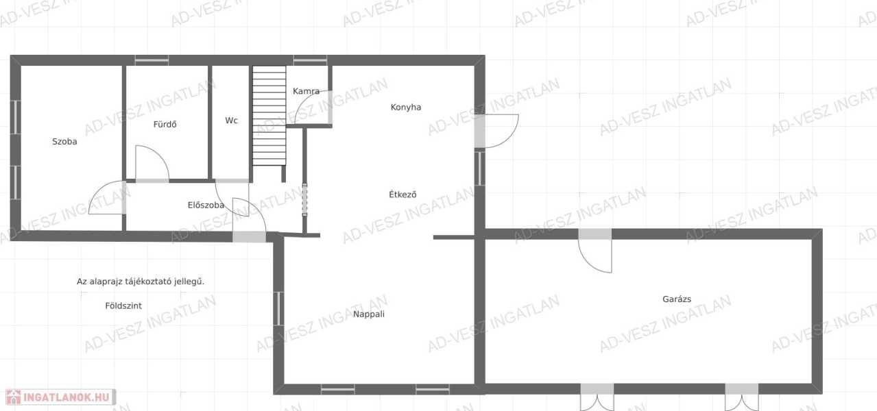
Kizárólag irodánk kínálatában!!! Ócsán kínálunk eladásra egy 2 szintes, önálló családi házat. Az ingatlan tehermentes,összkomfortos, hitelezhető, jogilag rendezett. A 719m2-es telek összközműves, rendezett, a kert öntözését fúrt kút is segíti. A parkolás szerelőaknás dupla garázzsal megoldott, mely 50m2-es. A ház földszintjén tágas, világos nappali, konyha étkezővel, egy hálószoba, wc, fürdő, kamra, előszoba, és közlekedő lett kialakítva. A tetőtérben további 2 hálószoba, fürdőszoba wc-vel, gardrób szoba, és közlekedő található. Az épület 2000-ben épült beton alapra, tégla falazattal, 10cm-es szigeteléssel, beton födémmel, zsindely fedéssel. 2024-ben felújításra került, kicserélték a nyílászárókat redőnyös, szúnyoghálós, műanyag ablakokra, lecserélték a csaptelepeket, és korlátot építettek. A ház biztonságáról távfelügyeletes riasztó rendszer gondoskodik. A fűtés kondenzációs gáz cirkóról radiátorokkal történik, de klímák is segítenek az optimális hőmérséklet elérében. Az ingatlan csendes utcában helyezkedik el, de a városközpont gyorsan megközelíthető, és a vonat, valamint a buszmegálló is sétatávolságban van. Ócsa fejlődő kisváros Budapest közelében, mely őrzi a vidéki élet hangulatát. Ha egy kellemes kisvárosban képzeli el az életét, egy kényelmes, jó állapotú otthonban, hívjon!!! Irodánk ingyenes hiteltanácsadással, profi ügyvédi támogatással várja. Ha a vásárláshoz még el kell adnia ingatlanát szívesen segítünk! Bocskainé Krisztina 30-221-3336
Lépjen velünk kapcsolatba!
Bocskainé Gudmon Krisztina
AD-VESZ INGATLAN
A partner további hirdetései
Kapcsolatfelvételhez kattintson
A tétel adatlapján feltüntetett leírások a rendelkezésre álló információink alapján készültek. Az eszközök működőképességét, rejtett hibáit nem vizsgáltuk, azokról nincs tudomásunk. Kérjük, hogy licitálás előtt személyesen is tekintsék meg a megvásárolni kívánt tételeket, mert utólag nem tudunk reklamációt elfogadni. A szállítási és bontási költségek a vásárlót terhelik. A szállítást akkor lehet megkezdeni, ha az eladó az erre vonatkozó engedélyt megadta. A leütési ár nem tartalmazza az ÁFÁ-t és a vásárlói felárat.