4405 Nyíregyháza Borbánya
Ingatlan sorszáma: 3830
664 000 Ft / m2
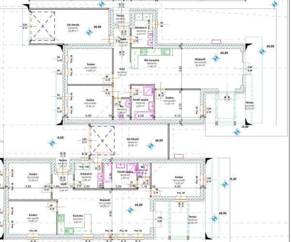
Borbánya, újonnan kialakuló zárt lakóparkjában garázsoknál találkozó ikerház eladó! -125 m2 bruttó - amerikai konyhás nappali, 3 hálószoba, háztartási helyiség / 89 m2 / - 24m2 terasz - 21m2 garázs Műszaki tartalom: •Ragasztott, csiszolt Porotherm téglafal, hőszigetelt •A+ energiahatékonyság •Emelt minőségű nyílászárók beépített árnyékolóval •Prémium szaniterek és szerelvények •Egyedi igényekre szabható belső kialakítás •Padló- és radiátorfűtés - Gáz-cirkó •Hőszivattyús/inverteres klíma •Garázs és terasz •Kulcsrakész átadás •Teljes infrastruktúra zárt lakóparkban A zárt lakóparkban mindössze 9 lakás lesz. Nyugodt, biztonságos környezet. A közelben minden megtalálható: orvosi rendelő, gyógyszertár, iskola, óvoda, posta, valamint buszmegálló, így a mindennapi élet kényelmesen megoldható. Pár perc alatt megközelíthető az autópálya valamint a belváros is. Az ingatlan modern kialakítású, energiatakarékos és hosszú távon is értékálló befektetés. Az átadás várható ideje: 2026. augusztus Teljes körű, ingyenes, bankfüggetlen ügyintézéssel várom hívását!
Lépjen velünk kapcsolatba!
Zborayné Barkaszi Anikó
Elements Group
A partner további hirdetései
Kapcsolatfelvételhez kattintson
A tétel adatlapján feltüntetett leírások a rendelkezésre álló információink alapján készültek. Az eszközök működőképességét, rejtett hibáit nem vizsgáltuk, azokról nincs tudomásunk. Kérjük, hogy licitálás előtt személyesen is tekintsék meg a megvásárolni kívánt tételeket, mert utólag nem tudunk reklamációt elfogadni. A szállítási és bontási költségek a vásárlót terhelik. A szállítást akkor lehet megkezdeni, ha az eladó az erre vonatkozó engedélyt megadta. A leütési ár nem tartalmazza az ÁFÁ-t és a vásárlói felárat.