4431 Nyíregyháza Sóstófürdő
Ingatlan sorszáma: 1681
1 099 667 Ft / m2
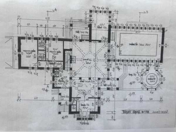
Nyíregyháza, SÓSTÓFÜRDŐ-höz közel, Makovecz által megtervezett -páratlan kivitelezésű családi ház, csodás 1780m2-es parkosított telken, egyedülálló mélyfúrású TERMÁL kúttal eladó. rövid részletek: - lakótér: 300m2 (nappali-étkező konyha- 6 szoba-6 fürdő) - alagsor: 190m2 (garázs, gépészet, szauna) - medence tér:110m2 - teraszok - több medence: 1 beltéri úszómedence. 1 beltéri kismedence, 1 kültéri kismedence, SZAUNA Rendkívül különleges az ingatlan megjelenése. Prémium nyílászárók és burkolatok melyek illeszkednek az épület stílusához. A részletes műszaki tartalommal kapcsolatban hívjon, keressen bizalommal. a maga nemében minden luxust kielégítő családi ház Ajánlom családi háznak és az elhelyezkedéséből adódóan, vállalkozásnak is. Kiváló mini szállodává, vendégházzá alakítható. Irányár:329,9M; Érd:0630/9594-299; Ha felkeltettem érdeklődését, kérem hívjon! Az ingatlan adatai megbízónktól kapott információk alapján lettek rögzítve, értük felelősséget nem tudunk vállalni! További kínálatunkat tekintse meg az ablakingatlan weboldalán. Irodánk szolgáltatásai: - energetikai tanúsítvány készítés, - Teljes körű ügyintézés ingatlanok adás-vételéhez, - Kedvezményes ügyvédi költség, - ingyenes hitel ügyintézés és biztosítási tanácsadás. Amennyiben az ingatlan megvásárlásához el szeretné adni jelenleg meglévő ingatlanát, ennek lebonyolításában is állunk rendelkezésére.
Lépjen velünk kapcsolatba!
Szatmári Tünde
Ablak Ingatlanközvetítő
A partner további hirdetései
Kapcsolatfelvételhez kattintson
A tétel adatlapján feltüntetett leírások a rendelkezésre álló információink alapján készültek. Az eszközök működőképességét, rejtett hibáit nem vizsgáltuk, azokról nincs tudomásunk. Kérjük, hogy licitálás előtt személyesen is tekintsék meg a megvásárolni kívánt tételeket, mert utólag nem tudunk reklamációt elfogadni. A szállítási és bontási költségek a vásárlót terhelik. A szállítást akkor lehet megkezdeni, ha az eladó az erre vonatkozó engedélyt megadta. A leütési ár nem tartalmazza az ÁFÁ-t és a vásárlói felárat.