9082 Nyúl
Ingatlan sorszáma: 10148
730 370 Ft / m2
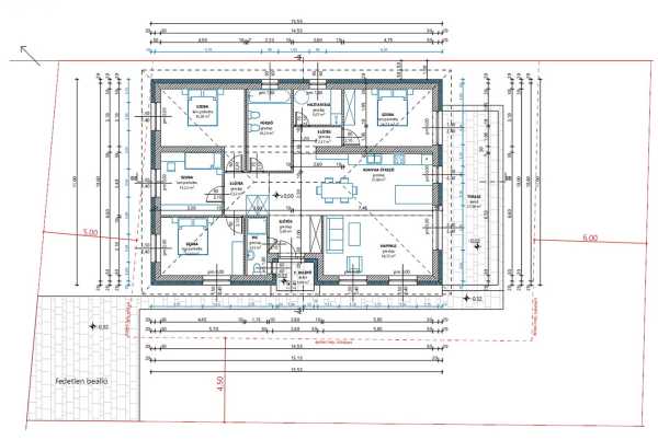
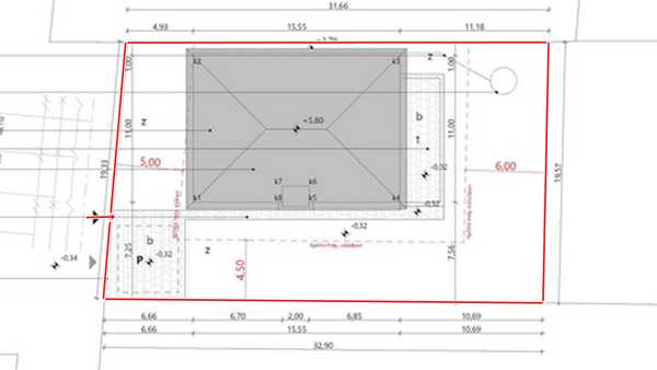
Ahol a minőség és a praktikum találkozik. Exkluzív ház, egyedi energetikai megoldásokkal. Nyúl település központi de nyugalmas részén kezdték meg a kivitelezését ennek a tágas és energiahatékony CSALÁDI HÁZNAK. Letisztult vonalvezetés - praktikus elrendezés - MODERN OTTHON. A 630 nm-es telekre nettó 135 nm-es otthon épül fel, 27,9 nm-es terasszal. Az amerikai konyhás nappalihoz 4 tágas hálószoba, 2 fürdőszoba, háztartási helyiség és egy hatalmas terasz keül kialakításra. Elrendezésének és méreteinek köszönhetően itt mindenki megtalálhatja a maga kényelmes-privát szféráját. Tájolásának és hatalmas ablakainak köszönhetően szinte egész nap fényárban úszik majd. Ha kicsinek ítéli meg a telket: szükség esetén kb. 300 nm-rel nagyobbítható!!! Egy kevés műszaki: 30 cm-es Via-Blok tégla falazat - 10 cm-es tégla válaszfalak. 20 cm-es homlokzati hőszigetelés Szeglemezes tetőszerkezet - 30 cm-es szálas szigeteléssel - antracit betoncserép fedéssel és csatornával 6 légkamrás tokkal - 3 rétegű üvegezéssel - acélmerevítéssel rendelkező antracit színű műanyag nyílászárókkal, melyekhez vakolható redőnytokozás és elektromos kiállás készül Pliszé szúnyoghálókhoz szükséges segédkeret beépítésre kerül Opciósan kérehető: antracit redőnyözés, távirányítóval és motoros mozgatással, valamint pliszé szúnyogháló. Víz-levegős hőszívattyú fűtés lesz mely padló és mennyezeti rendszerenek biztosítja a fűtést és a hűtést, valamint 300 liter használati melegvizet. 3x16A nappali áram és 3x16A H tarifa elektromos rendszer, valamint napelemes csatlakozás előkészítése. Riasztó rendszer alapszerelés és az érzékelőkhöz elektromos kiállás OPCIÓSAN kérhető: Kamerás kaputelefon Riasztó rendszer Utcafronti kerítés, antracit deszkázattal, zsalukő rendszerből, elektromos kapuval. Térkövezett kocsibeálló. Egyényi igényeket is figyelembe vesz a beruházó, hogy igazán az ÖN OTTHONA ÉPÜLJÖN FEL. Az ingatlan A+ energetikai tanúsítvánnyal rendelkezik. Előrehaladott - folyamatos kivitelezés. Átadása: műszaki átadás szerződéskötést követő hat hónapon belül. Részletes műszaki tartalomról, tervekről információt személyes találkozónál adok. Hívjon. Akár hétvégén is. Nehogy lemaradjon erről a remek ajánlatról. Irodánkban bankfüggetlen hitel tanácsadással és ügyintézéssel segítjük álmai megvalósításában. CSOK és állami támogatások intézése. Jogi és energetikai háttér.
Lépjen velünk kapcsolatba!
Horváthné Erika
EraLak Ingatlan
A partner további hirdetései
Kapcsolatfelvételhez kattintson
A tétel adatlapján feltüntetett leírások a rendelkezésre álló információink alapján készültek. Az eszközök működőképességét, rejtett hibáit nem vizsgáltuk, azokról nincs tudomásunk. Kérjük, hogy licitálás előtt személyesen is tekintsék meg a megvásárolni kívánt tételeket, mert utólag nem tudunk reklamációt elfogadni. A szállítási és bontási költségek a vásárlót terhelik. A szállítást akkor lehet megkezdeni, ha az eladó az erre vonatkozó engedélyt megadta. A leütési ár nem tartalmazza az ÁFÁ-t és a vásárlói felárat.