9024 Győr Nádorváros Szigethy A L3
Ingatlan sorszáma: 9561
1 397 351 Ft / m2
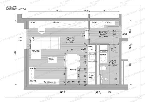
Győr egyik legkeresettebb városrészében, Nádorváros dinamikusan fejlődő környezetében kínálunk megvételre egy új építésű, 15 lakásos társasház egyik kiváló adottságú lakását, a 2. vagy 3. emeleten. A lakások 30 %-a már elkelt. NE MARADJ LE! Fűtéskész értékesítés. A 3. emeleten elhelyezkedő, DK-i tájolású, franciaerkélyes, 36,93 nm-es garzonlakás tökéletes választás: – első lakásnak, – kiadásra (albérlet / rövid táv), – vagy értékálló befektetésként. Világos, élhető tér – alacsony rezsivel A DK-i fekvésnek köszönhetően a lakás egész nap világos, míg az A / A+ energetikai besorolás garantálja az alacsony fenntartási költségeket – ami ma már nem extra, hanem elvárás. Műszaki tartalom – ami hosszú távon számít ✔ 3 rétegű hőszigetelt műanyag nyílászárók ✔ Redőny előkészítés ✔ 20–30 cm vasbeton teherhordó szerkezet ✔ 20 cm kőzetgyapot homlokzati hőszigetelés ✔ Intenzív zöldtető rendszer ✔ Közösségi tetőterasz ✔ Többrétegű talajnedvesség elleni szigetelés Gépészet: ✔ Központi gázkazán (2 db) ✔ Padlófűtés – modern komfort ✔ Elektromos törölközőszárító - kiállás ✔ Klíma előkészítés - opcionális, külön fizetendő Extra lehetőségek (limitált darabszám!) – Mélygarázs beálló: 8,5 M Ft / db (16 db) – Tároló (2–2,59 nm): 1,75 M Ft / db (6 db) Átadás: Fűtéskész állapotban, tervezetten 2027-ben Miért most érdemes lépned? – Új építés → nincs felújítási kockázat – Nádorváros → stabil, könnyen kiadható lokáció – Kis méret → magas hozam, gyors bérbeadás – Korai foglalás → jobb ár és választék Ne csak gondolkodj rajta – foglald le most, és biztosítsd a helyed Győr egyik legígéretesebb projektjében! A képek és látványtervek az értékesítést szolgálják, illusztrációk.
Lépjen velünk kapcsolatba!
Hartmann-né Ildikó Viki
Dr. Fekete Ingatlan Iroda Csoport - Ügyvédházak Győr
A partner további hirdetései
Kapcsolatfelvételhez kattintson
A tétel adatlapján feltüntetett leírások a rendelkezésre álló információink alapján készültek. Az eszközök működőképességét, rejtett hibáit nem vizsgáltuk, azokról nincs tudomásunk. Kérjük, hogy licitálás előtt személyesen is tekintsék meg a megvásárolni kívánt tételeket, mert utólag nem tudunk reklamációt elfogadni. A szállítási és bontási költségek a vásárlót terhelik. A szállítást akkor lehet megkezdeni, ha az eladó az erre vonatkozó engedélyt megadta. A leütési ár nem tartalmazza az ÁFÁ-t és a vásárlói felárat.