4400 Nyíregyháza Nyírszőlős
Ingatlan sorszáma: 9401
384 058 Ft / m2
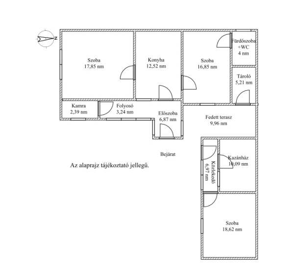
Nyíregyháza Nyírszőlős területén eladó egy tulajdoni lap szerinti tanya és gyümölcsös megnevezésű ingatlan. - Két lakóegység található az ingatlanon A nagyobb ház:- falazata vályog, vert fal, és tégla - két szoba, konyha, fürdőszoba, előszoba, folyosó, kamra és kívülről megközelíthető tároló - mérete: 68,9 nm A kisebb lakórész:- falazata tégla - szoba, közlekedő, kazánház található benne - métere: 35,7 nm - Az ablakok fa, szigetelt fa, és műanyagok, a fűtés gáz-cirkó, illetve két cserépkályha is rendelkezésre áll - A tető héjazata cserép - A melléképületek: - tyúkól, disznóól, szerszámos tároló, füstölő, kukorica kas, kinti WC - A telek összmérete: 1645 nm, melyből 821 nm kivett tanya, 824 nm gyümölcsös - A telek előtt külön helyrajzi számon egy 141 nm-es magánút található, mely a vételár részét képezi - A kertben diófák, gyümölcsfák, szőlő is van Ez az ingatlan ráncfelvarrás után akár két generáció együttélését is lehetővé teszi, a kert pedig a gazdálkodásra ad lehetőséget, akárcsak az ólak. Mivel elég nagy a telek, ha építkezésben gondolkodik is éri az árát, az utcafronti része is elég széles Az ingatlan kifüggesztendő, vásárlási szándéknál ezt figyelembe kell venni. Keressen, ha vételi szándékkal szeretné megtekinteni az ingatlant!
Lépjen velünk kapcsolatba!
Baku Lászlóné a Pontos Ingatlanos
Elements Group
A partner további hirdetései
Kapcsolatfelvételhez kattintson
A tétel adatlapján feltüntetett leírások a rendelkezésre álló információink alapján készültek. Az eszközök működőképességét, rejtett hibáit nem vizsgáltuk, azokról nincs tudomásunk. Kérjük, hogy licitálás előtt személyesen is tekintsék meg a megvásárolni kívánt tételeket, mert utólag nem tudunk reklamációt elfogadni. A szállítási és bontási költségek a vásárlót terhelik. A szállítást akkor lehet megkezdeni, ha az eladó az erre vonatkozó engedélyt megadta. A leütési ár nem tartalmazza az ÁFÁ-t és a vásárlói felárat.