9024 Győr Nádorváros Szigethy A
Ingatlan sorszáma: 9370
1 271 200 Ft / m2
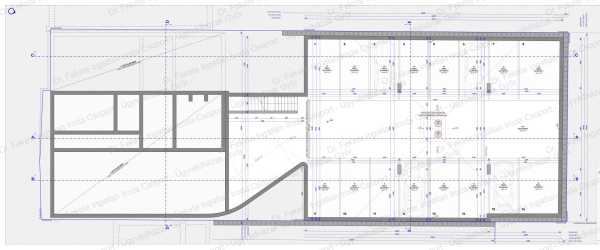
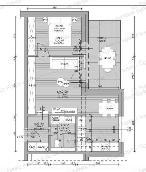
Győr egyik legkeresettebb városrészében, Nádorváros dinamikusan fejlődő környezetében kínálunk megvételre egy új építésű, 15 lakásos társasházban kiváló adottságú lakásokat. NE MARADJ LE! A lakások 30 %-a már elkelt. A 2. valamint a 3. emeleten elhelyezkedő, ÉNY-i tájolású, lakótér 45,4 nm-es lakás +10,23 nm erkélyes ingatlanok egyike, tökéletes választás: – első lakásnak, – kiadásra (albérlet / rövid táv), – vagy értékálló befektetésként. Az A / A+ energetikai besorolás garantálja az alacsony fenntartási költségeket – ami ma már nem extra, hanem elvárás.Nagyszerű élhető tér – alacsony rezsi Műszaki tartalom – ami hosszú távon számít ✔ 3 rétegű hőszigetelt műanyag nyílászárók ✔ Redőny előkészítés ✔ 20–30 cm vasbeton teherhordó szerkezet ✔ 20 cm kőzetgyapot homlokzati hőszigetelés ✔ Intenzív zöldtető rendszer ✔ Közösségi tetőterasz ✔ Többrétegű talajnedvesség elleni szigetelés Gépészet: ✔ Központi gázkazán (2 db) ✔ Padlófűtés – modern komfort ✔ Elektromos törölközőszárító - kiállás ✔ Klíma előkészítés - opcionális, külön fizetendő Extra lehetőségek (limitált darabszám!) – Mélygarázs beálló: 8,5 M Ft / db (16 db) – Tároló (2–2,59 nm): 1,75 M Ft / db (6 db) Fűtéskész értékesítés. Átadás: Fűtéskész állapotban, tervezetten 2027-ben Miért most érdemes lépned? – Új építés → nincs felújítási kockázat – Nádorváros → stabil, könnyen kiadható lokáció – Kis méret → magas hozam, gyors bérbeadás – Korai foglalás → jobb ár és választék Ne csak gondolkodj rajta – foglald le most, és biztosítsd a helyed Győr egyik legígéretesebb projektjében! A képek és látványtervek az értékesítést szolgálják, illusztrációk. Mégtöbb ajánlat a drfeketeingatlanponthu oldalon.
Lépjen velünk kapcsolatba!
Hartmann-né Ildikó Viki
Dr. Fekete Ingatlan Iroda Csoport - Ügyvédházak Győr
A partner további hirdetései
Kapcsolatfelvételhez kattintson
A tétel adatlapján feltüntetett leírások a rendelkezésre álló információink alapján készültek. Az eszközök működőképességét, rejtett hibáit nem vizsgáltuk, azokról nincs tudomásunk. Kérjük, hogy licitálás előtt személyesen is tekintsék meg a megvásárolni kívánt tételeket, mert utólag nem tudunk reklamációt elfogadni. A szállítási és bontási költségek a vásárlót terhelik. A szállítást akkor lehet megkezdeni, ha az eladó az erre vonatkozó engedélyt megadta. A leütési ár nem tartalmazza az ÁFÁ-t és a vásárlói felárat.