4400 Nyíregyháza Hímes
Ingatlan sorszáma: 9324
533 333 Ft / m2
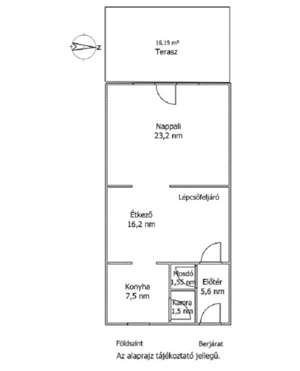
Nyíregyháza, Hímesben eladóvá vált ez a tégla építésű sorház: - A földszint nappali-étkező-konyha, kamra, lépcsőfeljáró, előtér, mosdó+WC, és teraszból áll. - Az első szinten három szoba, egy zuhanyzós fürdőszoba WC-vel, és egy kádas fürdőszoba található, a közlekedő-lépcsőfeljáró mellett. - A tetőtéri részben került két szoba, egy kádas fürdőszoba kialakításra. - A szövetkezeti ház műanyag nyílászárós, gáz-cirkó fűtésű, közös költsége 7.000,- Ft - A földszinti nagy terasz, az emeleti szintén nagy erkély mellett az osztatlan közös tulajdonú előkert és a hátsó kiskert is közel hozza a természetet. - A ház elhelyezkedését tekintve középen található a „sorban”, így fűtése gazdaságos. - A burkolatok parketta, járólap, illetve egy szobában padlószőnyeg. - Az alapterület kb. 50nm, az első szint szintén, a tetőtér kb. 35nm. - Stílusát tekintve az ingatlan a múltat idézi, ezért aki a modern stílus kedvelője, számítson rá, hogy számára felújítást igényel. - A kert végében egy garázs és egy – akár garázzsá is alakítható- tároló helyezkedik el. A Hímes kedvelt területén található ingatlan az előzetes egyeztetést követő naptól megtekinthető. Én várom hívását, hisz erről a házról elmondható, hogy három szinten, szinte minden megtalálható.
Lépjen velünk kapcsolatba!
Baku Lászlóné a Pontos Ingatlanos
Elements Group
A partner további hirdetései
Kapcsolatfelvételhez kattintson
A tétel adatlapján feltüntetett leírások a rendelkezésre álló információink alapján készültek. Az eszközök működőképességét, rejtett hibáit nem vizsgáltuk, azokról nincs tudomásunk. Kérjük, hogy licitálás előtt személyesen is tekintsék meg a megvásárolni kívánt tételeket, mert utólag nem tudunk reklamációt elfogadni. A szállítási és bontási költségek a vásárlót terhelik. A szállítást akkor lehet megkezdeni, ha az eladó az erre vonatkozó engedélyt megadta. A leütési ár nem tartalmazza az ÁFÁ-t és a vásárlói felárat.