4400 Nyíregyháza Oros
Ingatlan sorszáma: 9273
563 910 Ft / m2
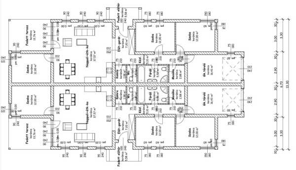
Nyíregyházán az Orosi út kedvelt kertvárosi részén eladó egy 133/125 nm-s, 3 szoba+nappalis ikerház, 100%-os készültségben, 530 nm-s kerttel, garázzsal, teljes aszfalt úttal. Az épület beton sávalapra épült, lábazata pedig zsalukő alkalmazásával készült. A falazata Phoroterm 30-as falazóblokkból épült. Az ikerház közös falazata hanggátló Phoroterm téglából készült. A padlószerkezet alatt 2 réteg talajnedvesség elleni szigetelést alkalmaztak. A ház körbe 15 cm-s szigetelés kapott. A lakások fűtésére hőszivattyút alalmaztak. A szobák laminált parkettával, a többi helyiség kerámia járólappal vannak burkolva. Vásárlás esetén kisebb ingatlant, építési telket a tulajdonos beszámít az árba.
Lépjen velünk kapcsolatba!
Bányász Katalin
Elements Group
A partner további hirdetései
Kapcsolatfelvételhez kattintson
A tétel adatlapján feltüntetett leírások a rendelkezésre álló információink alapján készültek. Az eszközök működőképességét, rejtett hibáit nem vizsgáltuk, azokról nincs tudomásunk. Kérjük, hogy licitálás előtt személyesen is tekintsék meg a megvásárolni kívánt tételeket, mert utólag nem tudunk reklamációt elfogadni. A szállítási és bontási költségek a vásárlót terhelik. A szállítást akkor lehet megkezdeni, ha az eladó az erre vonatkozó engedélyt megadta. A leütési ár nem tartalmazza az ÁFÁ-t és a vásárlói felárat.