4030 Debrecen Belváros
Ingatlan sorszáma: 9144
1 445 652 Ft / m2
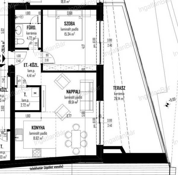
Eladó Debrecen belvárosában egy új építésű tégla lakás, amely a modern életstílus igényeit maximálisan kielégíti. Az ingatlan alapterülete 69 négyzetméter (54,14m2+28,14 m2 terasz!!), így elegendő teret biztosít a kényelmes mindennapokhoz. Várható átadás: 2026. év vége A lakás három tágas szobával rendelkezik, amelyek világos, barátságos atmoszférát teremtenek. A padlófűtés és a kondenzációs kazán együttesen garantálja a kellemes hőmérsékletet az év minden szakában, míg a saját split klíma a nyári hónapok hűsítője lesz. Az összkomfortos lakás minden szükséges kényelmet biztosít, így valóban otthon érezheti magát benne. A lakás keleti tájolású, 28 m²-es terasz öleli körül a nappalit és a szobát, tökéletes hely a pihenésre, reggeli kávézásra vagy baráti összejövetelekre, a naplemente élvezetére. Gépkocsi tárolására garázsok és udvari beállók vásárolhatók. Az irányár 99 750 000 Ft, amely egy kivételes lehetőség a belvárosi ingatlanpiacon. Ne hagyja ki ezt a remek lehetőséget, és lépjen kapcsolatba velem! Balla Anett Ingatlan&Bankbár
Lépjen velünk kapcsolatba!
Balla Anett
IngatlanBár
A partner további hirdetései
Kapcsolatfelvételhez kattintson
A tétel adatlapján feltüntetett leírások a rendelkezésre álló információink alapján készültek. Az eszközök működőképességét, rejtett hibáit nem vizsgáltuk, azokról nincs tudomásunk. Kérjük, hogy licitálás előtt személyesen is tekintsék meg a megvásárolni kívánt tételeket, mert utólag nem tudunk reklamációt elfogadni. A szállítási és bontási költségek a vásárlót terhelik. A szállítást akkor lehet megkezdeni, ha az eladó az erre vonatkozó engedélyt megadta. A leütési ár nem tartalmazza az ÁFÁ-t és a vásárlói felárat.