2330 Dunaharaszti Petőfitelep
Ingatlan sorszáma: 8987
870 647 Ft / m2
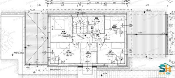
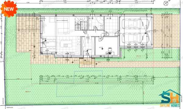
HAMAROSAN INDUL AZ ÉPÍTKEZÉS – ÖNÁLLÓ, ÚJÉPÍTÉSŰ CSALÁDI HÁZ LEKÖTHETŐ DUNAHARASZTIN! Dunaharaszti csendes, kertvárosi részén, egy 600 nm-es önálló telken indul hamarosan egy új, kétszintes családi ház kivitelezése. Az építkezés a vevő megérkezése után azonnal kezdődik! A belső elrendezés még módosítható, a ház személyre szabható az Ön igényei szerint. A környék kiváló infrastruktúrával rendelkezik: üzletek, iskola, óvoda, éttermek rövid sétatávolságra találhatók. Tervezett elosztás: előszoba amerikai konyhás nappali étkezővel 5 hálószoba 2 fürdőszoba külön WC gardrób kamra háztartási helyiség 32 nm-es dupla garázs Műszaki tartalom: 30 cm-es tégla falazat + 15 cm hőszigetelés födém szigetelés: 25 cm tető: betoncserép 3 rétegű műanyag nyílászárók padlófűtés kondenzációs gázkazánnal. 1db hűtő-fűtő klíma riasztórendszer előkészítése mészkő párkányok és homlokzati díszburkolat igény szerint az árban Energetikai besorolás: A+++ Burkolatok szabadon választhatók – hideg és meleg burkolatok 6 000 Ft/m²-ig a vételárban. Már 2 millió Ft-tal leköthető, majd 20% önerő szükséges. Várható átadás: 2026 év vége! A kivitelező tőkeerős, megbízható, munkájára igényes, számos referenciaház személyesen is megtekinthető! Érdeklődni a 0630 283 4313 telefonszámon lehet info.skylinehomes@gmail.com Ha épp nem tudom felvenni, minden esetben visszahívom! Segítünk hitelügyintézésben és meglévő ingatlan értékesítésében is!
Lépjen velünk kapcsolatba!
Temesvári László
Skyline Homes
A partner további hirdetései
Kapcsolatfelvételhez kattintson
A tétel adatlapján feltüntetett leírások a rendelkezésre álló információink alapján készültek. Az eszközök működőképességét, rejtett hibáit nem vizsgáltuk, azokról nincs tudomásunk. Kérjük, hogy licitálás előtt személyesen is tekintsék meg a megvásárolni kívánt tételeket, mert utólag nem tudunk reklamációt elfogadni. A szállítási és bontási költségek a vásárlót terhelik. A szállítást akkor lehet megkezdeni, ha az eladó az erre vonatkozó engedélyt megadta. A leütési ár nem tartalmazza az ÁFÁ-t és a vásárlói felárat.